Hoppa till huvudinnehåll
Renderad bild, tillval kan förekomma
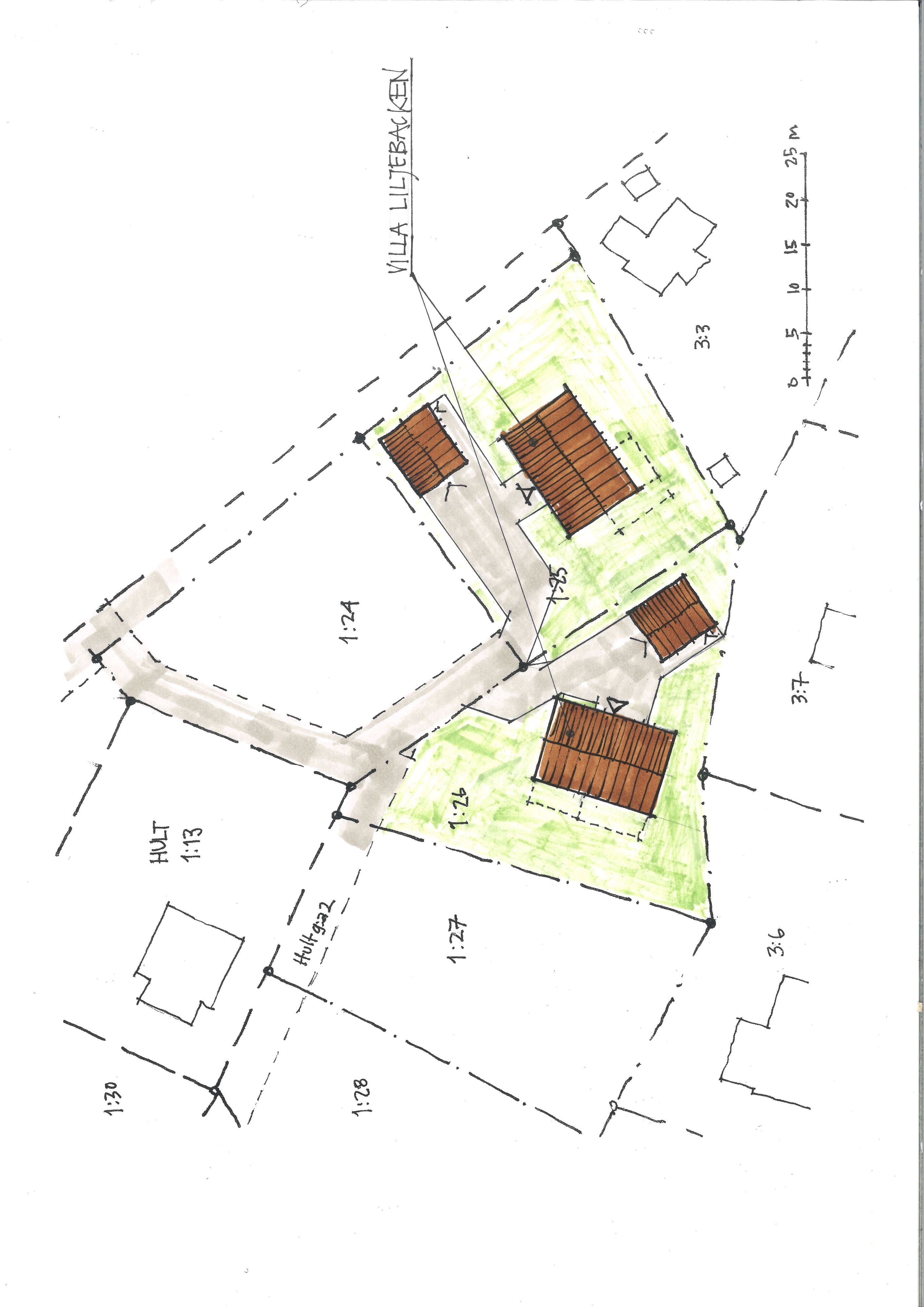
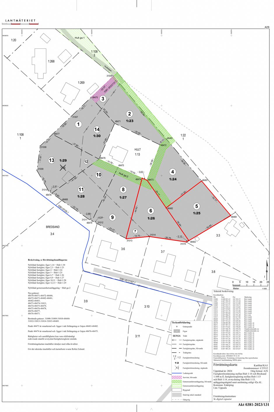
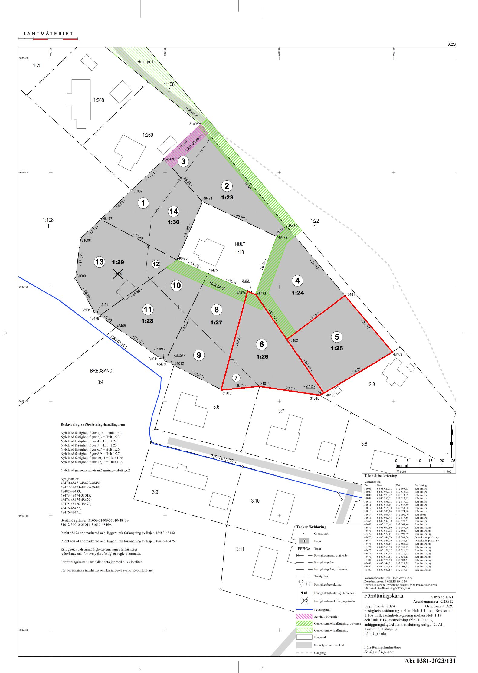
Fastighetskarta
1 / 5
Nyproduktion

Bredsand, Enköping

Hultstigen 28

4 490 000 kr

Pris4 490 000 kr

Fakta om bostaden

Typ
Friliggande villa
Upplåtelseform
Friköpt
Antal rum
4 rok
Boarea
118,8 kvm
Tomtarea
1 002 kvm
Byggår
2025
Pris
4 490 000 kr

Harmonisk blandning av naturskönhet och trivsamhet

Välkommen till Hultstigen och natursköna Bredsand!

Villa-Liljebacken från Vårgårdahus erbjuder öppna sociala ytor, perfekt för familj och vänner att umgås på. Här finns ett rymligt sovrum med en stor klädkammare, samt gott om förvaring och två separata sovrum för barnen. Dessutom finns en flexibel yta som kan anpassas efter dina behov, oavsett om det är ett tv-rum, ett hemmakontor eller en lekyta. Med en total boarea om 118,8 m², finns en möjlighet att skapa ett långsiktigt hem. Byggnadshöjden är 3,2 meter och nockhöjden är 5,2 meter. Huset är energieffektivt, vilket gör det till ett lågenergihus. Detta hus kombinerar funktionalitet och flexibilitet med modern design, vilket gör det till ett idealiskt hem för en modern familj.

Priset i annonsen gäller för tomt, byggsats av hus samt färdigställande, grovplanerad tomt, finplanering avslutas av köparen efter tillträdet. Köpare bekostar anslutningsavgifter såsom VA, el, fiber etc. Fastigheten säljs med klausul om att ingå entreprenadkontrakt med byggherren. Vidare erbjuds möjlighet att välja annan husmodell från Vårgårdahus.

Bredsand är en fridfull oas endast 10 minuter med bil från Enköping och en timmes resa från centrala Stockholm. Här är naturen den främsta tillgången, och området bjuder in till rofyllda stunder bland skogarnas djup och vid de stilla badplatserna. Detta natursköna område vid vattnet är en plats där grannskapet präglas av en stark känsla av gemenskap.

En charmig lanthandel finns tillgänglig för dagliga behov, och en vacker strand breder ut sig längs horisonten. Bredsand erbjuder en harmonisk blandning av naturskönhet och trivsamhet, där samhörighet blomstrar. Sommaren lockar med sköna bad, hösten med rika svampmarker och en färgsprakande natur, vintern erbjuder skidspår och krispig snö, medan våren förnyar landskapet med sin spirande grönska. Bredsand i Enköping är ett område i ständig utveckling, där varje årstid bjuder på unika och oförglömliga upplevelser.

Kontakta mäklaren för mer info.

Bilder

Renderad bild, tillval kan förekomma
Fastighetskarta

Bostadsinformation

Ansvarig mäklare

Mäklarens profilbild

August Stendahl

Franchisetagare /
Reg. Fastighetsmäklare

Extra kontaktperson

Mäklarens profilbild

Oskar Berge

Franchisetagare, Reg. Fastighetsmäklare

Karta

Enköping Bredsand

Hultstigen 28

Värdera din bostad

Fyll i formuläret så kontaktar vi dig inom kort

Genom att klicka på knappen för att värdera din bostad så godkänner du användarvillkoren och personuppgiftspolicyn

Pris4 490 000 kr
Värdera din bostad

Boendekalkyl

Se din boendekostnad direkt. Framräknad kostnad är en indikation på vilken boendekostnad ni kan få efter era förutsättningar.

Andra har också tittat på