230


































1 / 34
Olskroken, GÖTEBORG
Norra gubberogatan 5
4 250 000 kr
Pris (utgångspris)4 250 000 kr
Fakta om bostaden
- Typ
- Lägenhet
- Upplåtelseform
- Bostadsrätt
- Antal rum
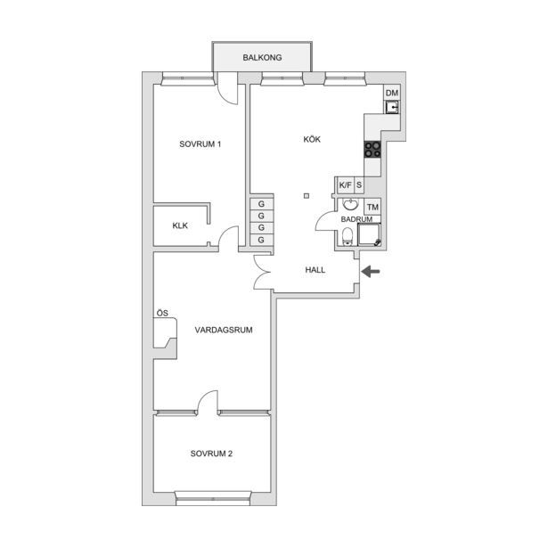
- 3 rok
- Boarea
- 84 kvm
- Våning
- 3 av 5, hiss finns
- Lägenhetsnummer
- 14
- Månadsavgift
- 4 794 kr
- Byggår
- 1939
- Pris
- 4 250 000 kr utgångspris
Kommentar till månadsavgift
*
Välkommen hem till Olskroken!
Nu finns möjligheten att förvärva en smakfullt renoverad 3:a på omtyckta Norra Gubberogatan. Med sitt genomgångsläge och balkong mot parken skapas ett rikligt ljusinsläpp i alla bostadens rum.
Ett hem som präglas av sin rymd i varje rum, takhöjd och charmiga kombination av originaldetaljer och moderna lösningar!
Lägenheten har stort kök med omgjord planlösning där en stor matplats gör de möjligt för familjen att samlas här. Möjligheten finns även att dela av köket igen och skapa ett extra sovrum igen.
Vardagsrummet är väl tilltaget och har delats av för att skapa de tredje rummet. En härlig öppen spis och ordentlig takhöjd gör detta rummet luftigt och charmigt.
De stora sovrummet vetter mot innergården och har praktisk klädkammare för all förvaring. Från sovrummet finns även utgång till balkongen.
Välkommen att uppleva på visningen!
Ett hem som präglas av sin rymd i varje rum, takhöjd och charmiga kombination av originaldetaljer och moderna lösningar!
Lägenheten har stort kök med omgjord planlösning där en stor matplats gör de möjligt för familjen att samlas här. Möjligheten finns även att dela av köket igen och skapa ett extra sovrum igen.
Vardagsrummet är väl tilltaget och har delats av för att skapa de tredje rummet. En härlig öppen spis och ordentlig takhöjd gör detta rummet luftigt och charmigt.
De stora sovrummet vetter mot innergården och har praktisk klädkammare för all förvaring. Från sovrummet finns även utgång till balkongen.
Välkommen att uppleva på visningen!
Bilder




Bostadsinformation
Ansvarig mäklare
Karta
Göteborg Olskroken
Norra gubberogatan 5
Värdera din bostad
Fyll i formuläret så kontaktar vi dig inom kort
Pris (utgångspris)4 250 000 kr
Boendekalkyl
Se din boendekostnad direkt. Framräknad kostnad är en indikation på vilken boendekostnad ni kan få efter era förutsättningar.
Andra har också tittat på
1 / 0
