Hoppa till huvudinnehåll
Tomtkarta
1 / 45

Stuvsta Segersminne, Huddinge

Fågelvägen 2A

7 995 000 kr

Pris7 995 000 kr

Fakta om bostaden

Typ
Friliggande villa
Upplåtelseform
Friköpt
Antal rum
6 rok
Boarea
118 kvm
Biarea
70 kvm
Tomtarea
716 kvm
Byggår
1924
Driftskostnad
5 612 kr/månad
Pris
7 995 000 kr

20-tals hus i populära Segersminne

Välkomna till denna ljusa och charmiga 20-talsvilla i attraktiva Stuvsta/Segersminne, ett hem där tidstypiska detaljer möter moderna renoveringar på ett smakfullt sätt. Generös takhöjd och stora fönster ger ett fint ljusinsläpp och en härlig rymd genom hela bostaden. Huset är välskött och har genomgått omfattande renoveringar under senare år samt energieffektiva lösningar som ger låga driftskostnader.

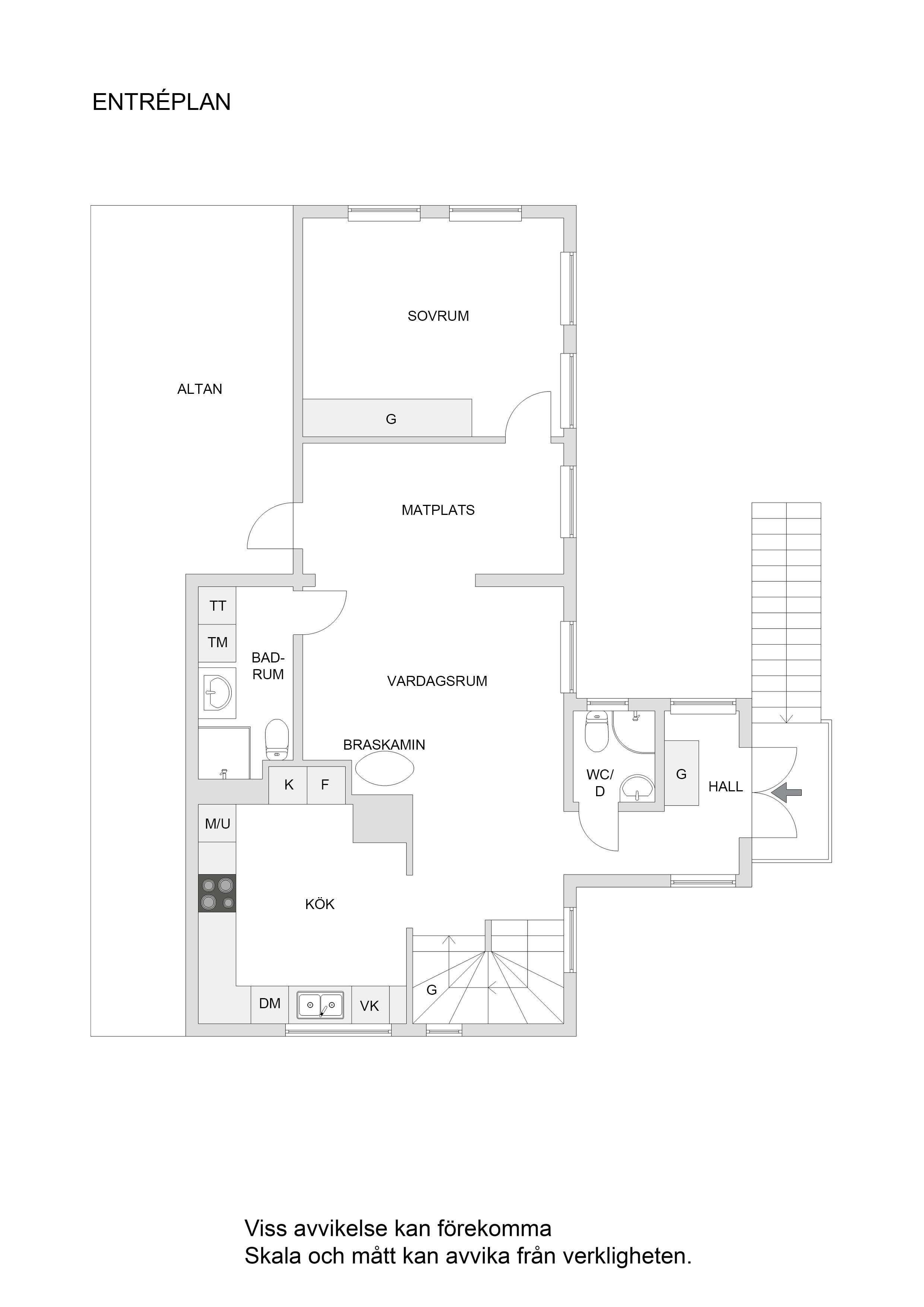
Entréplanet erbjuder sociala och inbjudande ytor med vardagsrum och matplats med braskamin som skapar både värme och trivsel. Här finns även ett renoverat kök, två renoverade badrum samt ett sovrum. Från vardagsrummet nås altenen till husets baksida. Övre plan rymmer ett allrum som leder vidare till tre bra sovrum, perfekt för familjen eller för den som önskar extra arbetsrum. I källarvåningen har ni ett litet kontor, pannrum och en separat uthyrningslägenhet med egen ingång som naturligt kan ge detta hem en mycket god ekonomi. Idag hyrs den ut av nuvarande ägare.

Fastigheten är belägen med ett fint solläge, och här kan ni njuta av vårens tidiga solstrålar. Trädgården sprudlar av liv under sommarhalvåret med gräsmatta, stenläggning, rabatter och växthus. Spabad på husets soliga framsida vilket ni njuter av hela året runt.

Området är mycket populärt lugnt och familjevänligt med närhet till både city och härliga naturområden samt Långsjön. Bra skolor och förskolor inom gångavstånd. Det är nära till allt man behöver. På 10 min promenerar ni till Stuvsta Centrum med apotek, restauranger, butiker, bageri, vårdcentral, bank, bussar och pendeltåg (som tar 13 minuter till Stockholm City). På 15 min promenerar ni till Hagsätra Centrum där tunnelbanans gröna linje går in mot stan. I närområdet finns även järnhandel, färgaffär, brädgård, bensinstationer, Coop Extra, Stuvsta handelsträdgård, elaffär, gardinaffär och ett flertal olika typer av bra matställen. Villan är besiktigad och säljaren kommer teckna en försäkring mot dolda fel under en 10 års period.

Önskar ni bo i ett mycket attraktivt och barnvänligt villakvarter, nära fin natur med närhet till centrum och kommunikationer då ska ni inte missa denna fastighet. Välkomna!

Bilder

Bostadsinformation

Ansvarig mäklare

Mäklarens profilbild

Jens Berg

Reg. Fastighetsmäklare, Franchisetagare

Karta

Huddinge Stuvsta Segersminne

Fågelvägen 2A

Värdera din bostad

Fyll i formuläret så kontaktar vi dig inom kort

Genom att klicka på knappen för att värdera din bostad så godkänner du användarvillkoren och personuppgiftspolicyn

Pris7 995 000 kr
Värdera din bostad

Boendekalkyl

Se din boendekostnad direkt. Framräknad kostnad är en indikation på vilken boendekostnad ni kan få efter era förutsättningar.

Andra har också tittat på