190
























1 / 24
Fredriksdal / Johanneberg, GÖTEBORG
Ebbe Lieberathsgatan 16C
Fakta om bostaden
- Typ
- Lägenhet
- Upplåtelseform
- Bostadsrätt
- Antal rum
- 3 rok
- Boarea
- 80,5 kvm
- Våning
- 1
- Lägenhetsnummer
- 11009
- Månadsavgift
- 5 083 kr *
- Byggår
- 2017/2018
Kommentar till månadsavgift
* I månadsavgiften ingår värme, kallvatten och bostadsrättstillägg. Kostnad för hushållsel och uppvärmning av varmvatten tillkommer och debiteras enligt enskild förbrukning. Obligatoriskt tillägg för TV/bredband/telefoni om 150 kr/mån.
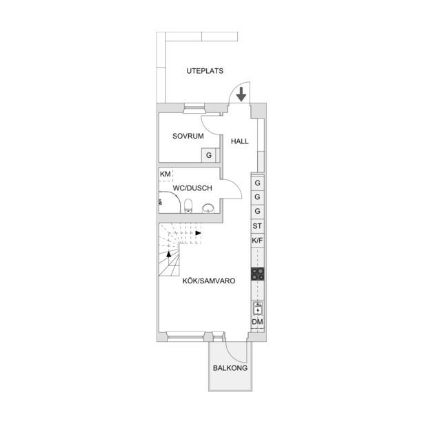
Välkommen till Ebbe Lieberathsgatan 16C och denna ljusa etagelägenhet längst ner i huset. Lägenheten bjuder på stilrena materialval, väldisponerade ytor och gott om förvaring. Inte nog med att lägenheten har balkong utan den har även en terrass där det får plats med större möblemang. Här ska man sitta en varm julikväll och njuta av god mat och dryck. I närområdet finner du mataffärer, gym, härliga grönområden och du bor även ett fåtal hållplatser från Göteborgs centralaste delar och citypulsen.
Källarförråd finns.
Kontakta mäklaren för att boka visning.
Källarförråd finns.
Kontakta mäklaren för att boka visning.
Bilder




Ansvarig mäklare
Karta
Göteborg Fredriksdal / Johanneberg
Ebbe Lieberathsgatan 16C
Värdera din bostad
Fyll i formuläret så kontaktar vi dig inom kort
Boendekalkyl
Se din boendekostnad direkt. Framräknad kostnad är en indikation på vilken boendekostnad ni kan få efter era förutsättningar.
Andra har också tittat på
1 / 0
