190








































1 / 40
Ljungskile, Ljungskile
Grötån 154
Fakta om bostaden
- Typ
- Friliggande villa
- Upplåtelseform
- Friköpt
- Antal rum
- 5 rok
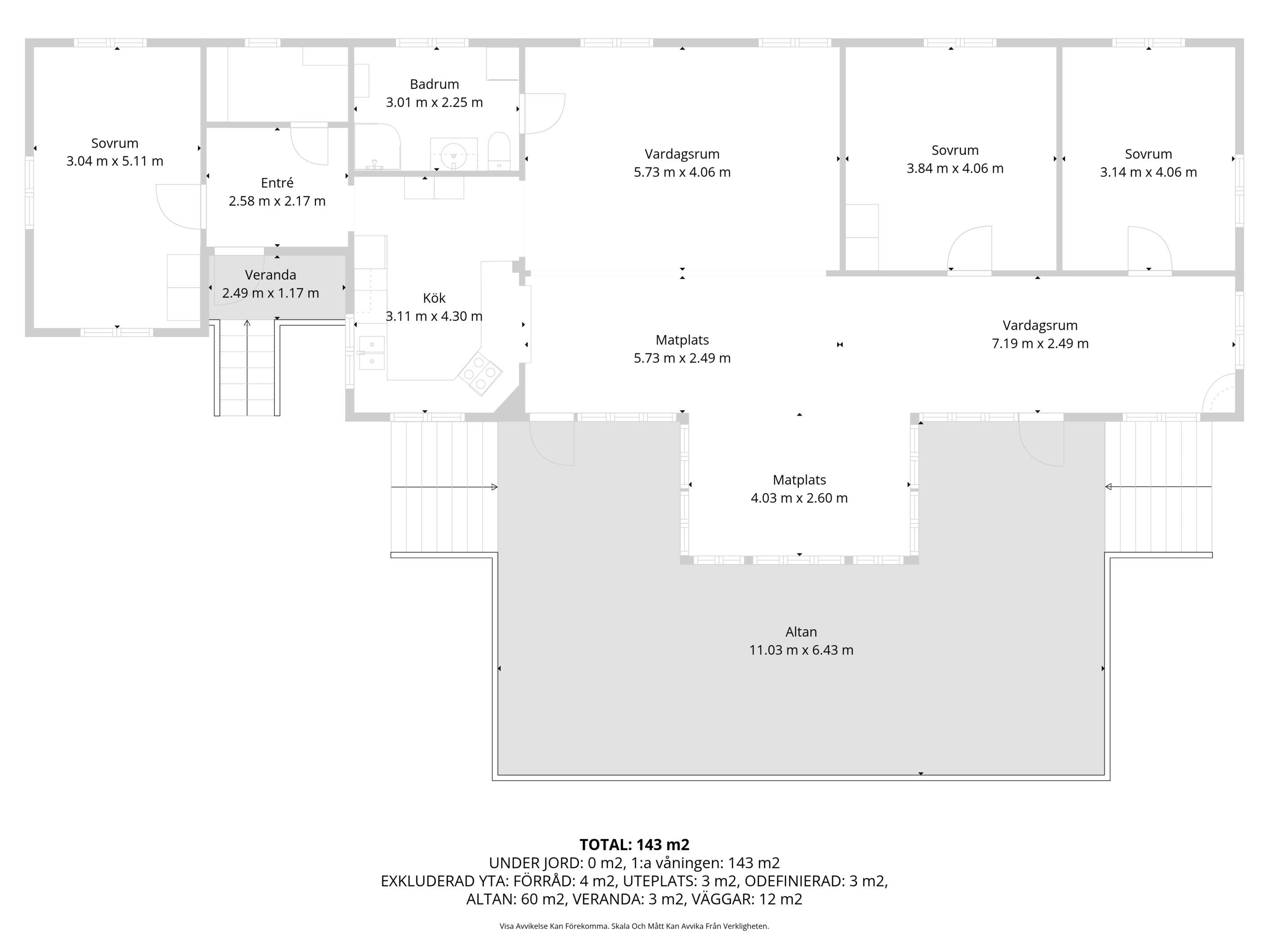
- Boarea
- 130 kvm
- Tomtarea
- 1 955 kvm
- Byggår
- 1932
- Driftskostnad
- 987 kr/månad
Ljus och stor villa med öppna sällskapsrum och altan
På Grötån 154 i Ljungskile erbjuds denna charmfulla, friliggande villa om 130 kvm, där ljus, rymd och genomtänkta ytor samspelar i en trivsam helhet. Här möts klassiska materialval och en inbjudande planlösning med generösa sällskapsytor som bjuder in till både vardag och umgänge. Vardagsrum och matplats flyter samman i en öppen disposition med fint ljusinsläpp från flera väderstreck, medan köket ligger i naturlig anslutning. En rymlig altan förlänger bostaden och skapar en uppskattad koppling mellan inne och ute under årets varmare månader.
Villan präglas av en social planlösning där de stora sällskapsytorna utgör hemmets naturliga samlingspunkt. Vardagsrummen ramas in av en centralt placerad matplats, vilket ger möjlighet för både större middagar och avkopplande stunder. Plankgolv i flera av rummen, ljusa väggar och vitmålade innertak skapar ett varmt och enhetligt uttryck, förstärkt av stora fönsterpartier som släpper in rikligt med dagsljus.
Köket är funktionellt och inbjudande med goda arbetsytor, bra förvaring och ligger i direkt kontakt med matplatsen, vilket gör det väl anpassat för social matlagning. Härifrån når man enkelt altanen med en total area om ca 60 kvm, som erbjuder rikliga ytor för utemöbler och utsikt över de grönskande omgivningarna och havet.
De privata delarna är harmoniskt placerade och kompletteras av ett ljust, välplanerat badrum med dusch, tvättmaskin och torktumlare.
Grötån är beläget i ett rofyllt och naturnära område i Ljungskile, omgivet av vacker bohuslänsk natur med närhet till både skog, öppna landskap och vatten. Strax nedanför finns bryggor och badplats där du enkelt kan ta ett svalkande dopp, och för den morgonpigge är det svårt att slå känslan av att promenera ner i morgonrock för ett uppfriskande morgondopp. Här bor du med kort avstånd till havet, badplatser och båtliv i en harmonisk och småskalig boendemiljö som präglas av lugn och goda möjligheter till rekreation. Ljungskiles centrum nås på cirka tio minuter med bil och erbjuder god service, skolor och välfungerande kommunikationer. Stenungssunds centrum nås på cirka 15 minuter, och med smidig anslutning till E6 tar du dig till Göteborg under en timme. Här erbjuds ett attraktivt läge som kombinerar naturnära lugn med goda pendlingsmöjligheter och närhet till stadens utbud.
Sammanfattningsvis är detta ett mycket hemtrevligt och välskött boende med tydlig karaktär, beläget i ett lugnt och omtyckt område i Ljungskile.
Varmt välkommen på visning!
Ansvarig mäklare: Jessica Nyman tel. 0727-113300
Villan präglas av en social planlösning där de stora sällskapsytorna utgör hemmets naturliga samlingspunkt. Vardagsrummen ramas in av en centralt placerad matplats, vilket ger möjlighet för både större middagar och avkopplande stunder. Plankgolv i flera av rummen, ljusa väggar och vitmålade innertak skapar ett varmt och enhetligt uttryck, förstärkt av stora fönsterpartier som släpper in rikligt med dagsljus.
Köket är funktionellt och inbjudande med goda arbetsytor, bra förvaring och ligger i direkt kontakt med matplatsen, vilket gör det väl anpassat för social matlagning. Härifrån når man enkelt altanen med en total area om ca 60 kvm, som erbjuder rikliga ytor för utemöbler och utsikt över de grönskande omgivningarna och havet.
De privata delarna är harmoniskt placerade och kompletteras av ett ljust, välplanerat badrum med dusch, tvättmaskin och torktumlare.
Grötån är beläget i ett rofyllt och naturnära område i Ljungskile, omgivet av vacker bohuslänsk natur med närhet till både skog, öppna landskap och vatten. Strax nedanför finns bryggor och badplats där du enkelt kan ta ett svalkande dopp, och för den morgonpigge är det svårt att slå känslan av att promenera ner i morgonrock för ett uppfriskande morgondopp. Här bor du med kort avstånd till havet, badplatser och båtliv i en harmonisk och småskalig boendemiljö som präglas av lugn och goda möjligheter till rekreation. Ljungskiles centrum nås på cirka tio minuter med bil och erbjuder god service, skolor och välfungerande kommunikationer. Stenungssunds centrum nås på cirka 15 minuter, och med smidig anslutning till E6 tar du dig till Göteborg under en timme. Här erbjuds ett attraktivt läge som kombinerar naturnära lugn med goda pendlingsmöjligheter och närhet till stadens utbud.
Sammanfattningsvis är detta ett mycket hemtrevligt och välskött boende med tydlig karaktär, beläget i ett lugnt och omtyckt område i Ljungskile.
Varmt välkommen på visning!
Ansvarig mäklare: Jessica Nyman tel. 0727-113300
Bilder




Ansvarig mäklare
Karta
Uddevalla Ljungskile
Grötån 154
Boendekalkyl
Se din boendekostnad direkt. Framräknad kostnad är en indikation på vilken boendekostnad ni kan få efter era förutsättningar. Kalkylen tillhandahålls av Lånekoll.
Värdera din bostad
Fyll i formuläret så kontaktar vi dig inom kort
Andra har också tittat på
1 / 0
