510





1 / 5
Såld!
Fjärås - Förlanda, FJÄRÅS
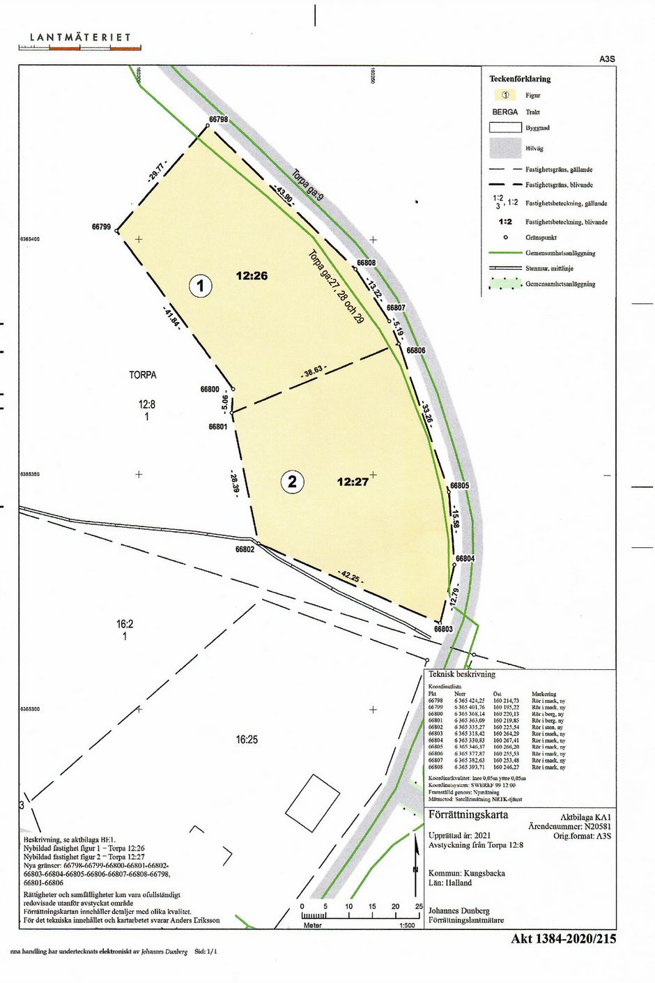
Torpa Ryetvägen 12:27
Slutpris
1 250 000 kr
Slutpris
1 250 000 kr
Fakta om tomten
- Typ
- Tomt
- Tomtarea
- 1 830 kvm
Nybyggd villa för endast ca 4 200 000 kr! Endast en tomt kvar!
Drömmer du om egen villa, trädgård och kanske även hund och Volvo...? Men har du kanske som många känt en uppgivenhet när bostadspriserna skenar. Här finns nu chansen för dig att köpa ett nyckelfärdigt hus för ca 4,2 miljoner. Dessutom på en villatomt om hela 1 800 kvm med naturen som närmsta granne.
Missa inte detta tillfälle. En av två tomter är nu såld! Vi säljer dessa tillsammans med Smålandsvillan. Väljer du deras "Villa Kalmar" blir priset precis som nämnts ovan. Då har du dessutom möjlighet att utöka boarean genom att inreda ovanvåningen själv. Väljer du i stället en enplansvilla som "Fredriksdal" så har du allt klappat och klart för ca 4,6 miljoner.
Läget är lantligt vackert och du tar dig snabbt till och från jobbet då det är nära till påfart E6 vid Fjärås. I Fjärås finns dessutom det mesta (eller kanske allt) du behöver. Affär, apotek, vårdcentral, idrottsplats, simhall och skola etc.
Se bifogade offerter från Smålandsvillan för totalkostnad för nyckelfärdiga hus. Fastigheterna är knutna till Smålandsvillan vilket innebär att du får hjälpa av dessa som är proffs på att bygga hus. Du behöver inte några förkunskaper utan kan helt ägna dig åt det som är roligt så som att välja tapeter och färg på huset. Du får välja vilket hus du vill ur deras sortiment. Köper du tomten nu så kan du få flytta in om ca 1,5 år. Då har vi tagit höjd för att Kungsbacka kommun har långa handläggningstider idag.
Kontaktperson på Smålandsvillan är Peder Lorentzon
Missa inte detta tillfälle. En av två tomter är nu såld! Vi säljer dessa tillsammans med Smålandsvillan. Väljer du deras "Villa Kalmar" blir priset precis som nämnts ovan. Då har du dessutom möjlighet att utöka boarean genom att inreda ovanvåningen själv. Väljer du i stället en enplansvilla som "Fredriksdal" så har du allt klappat och klart för ca 4,6 miljoner.
Läget är lantligt vackert och du tar dig snabbt till och från jobbet då det är nära till påfart E6 vid Fjärås. I Fjärås finns dessutom det mesta (eller kanske allt) du behöver. Affär, apotek, vårdcentral, idrottsplats, simhall och skola etc.
Se bifogade offerter från Smålandsvillan för totalkostnad för nyckelfärdiga hus. Fastigheterna är knutna till Smålandsvillan vilket innebär att du får hjälpa av dessa som är proffs på att bygga hus. Du behöver inte några förkunskaper utan kan helt ägna dig åt det som är roligt så som att välja tapeter och färg på huset. Du får välja vilket hus du vill ur deras sortiment. Köper du tomten nu så kan du få flytta in om ca 1,5 år. Då har vi tagit höjd för att Kungsbacka kommun har långa handläggningstider idag.
Kontaktperson på Smålandsvillan är Peder Lorentzon
Bilder




Ansvarig mäklare
Värdera din bostad
Fyll i formuläret så kontaktar vi dig inom kort
Slutpris
1 250 000 kr
Andra har också tittat på
1 / 0
