Hoppa till huvudinnehåll
Säljarens egna bild
Säljarens egna bild
Tomtkarta Snälleröd 4708
1 / 58

Ljungbyhed, Ljungbyhed

Snälleröd 4708

5 695 000 kr

Visningar

Värdera din bostad
Pris5 695 000 kr

Fakta om fastigheten

Typ
Gård/Jordbr/Skog
Upplåtelseform
Friköpt
Antal skiften
1
Antal rum
6 rok
Boarea
148 kvm
Biarea
10 kvm
Areal
17,751 ha
Byggår
1980

Charmig gård i Snälleröd!

I natursköna Snälleröd finner du denna charmiga och välskötta gård med hela 17,7 hektar mark, två egna dammar med kräftor samt en nybyggd maskinhall från 2022. Gården erbjuder en fin kombination av funktion, trivsel och utvecklingsmöjligheter för såväl djurhållning som lantligt boende.

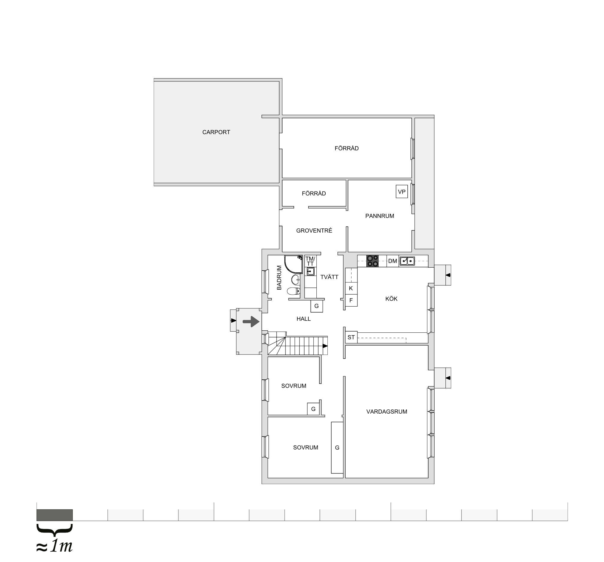
Gårdens boningshus om 148 kvm rymmer 6 rum och kök, varav 4 sovrum och två badrum. Här finns gott om förvaringsutrymmen och huset har löpande underhållits med flera större åtgärder, såsom installation av solceller 2018 och ny 3-kammarbrunn 2016. Runt huset breder en charmig och välskött trädgård ut sig om ca 2 500 kvm med flera uteplatser, trädgårdsland samt nyligen uppfört staket och grind som skapar en tydlig och trivsam inramning.

Intill boningshuset finns ett gästhus om ca 50 kvm med kök, allrum och sovrum. Gästhuset har under åren hyrts ut löpande och lockat många återkommande gäster – ett utmärkt komplement för den som önskar extra inkomster eller plats för besökare.

Vidare finns en stallbyggnad med loge, inrett badrum och tvättstuga. Stallet har tidigare använts för kor, men har under senare tid påbörjats anpassning för hästhållning. En stor del av den äldre betongen har bilats upp för att möjliggöra gjutning av ny platta och installation av hästboxar, vilket ger nästa ägare en flexibel möjlighet att färdigställa efter egna behov. Markområdet runt stallet har dessutom under 2025 hägnats in till hagar, särskilt anpassade för hästar.

Logen erbjuder praktiska ytor med bland annat spolspilta, kylrum och goda förvaringsmöjligheter. Den rymliga maskinhallen om ca 215 kvm, uppförd 2022, är utrustad med två höga portar och lämpar sig väl för både maskiner och annan verksamhet.

Marken till gården är fördelad på cirka 3 hektar skog samt 14 hektar åker- och betesmark, vilket skapar goda förutsättningar för djurhållning, odling eller annan lantlig verksamhet.

Detta är en gård med stora möjligheter för dig som söker ett bekvämt boende i lantlig miljö, med redan påbörjade anpassningar för hästhållning och goda utvecklingsmöjligheter framåt.

Välkommen att kontakta mäklare för mer information och visning!

Bilder

Bostadsinformation

Ansvarig mäklare

Mäklarens profilbild

Adam Lock

Reg. Fastighetsmäklare

Karta

Klippan Ljungbyhed

Snälleröd 4708

Värdera din bostad

Fyll i formuläret så kontaktar vi dig inom kort

Genom att klicka på knappen för att värdera din bostad så godkänner du användarvillkoren och personuppgiftspolicyn

Visningar

Värdera din bostad
Pris5 695 000 kr

Andra har också tittat på