230




































1 / 36
Våxtorp
Sjöalt 405
2 875 000 kr
Pris (utgångspris)2 875 000 kr
Fakta om fastigheten
- Typ
- Gård/Jordbr/Skog
- Upplåtelseform
- Friköpt
- Antal skiften
- 1
- Antal rum
- 5 rok
- Boarea
- 117 kvm
- Biarea
- 18 kvm
- Areal
- 2,278 ha
- Byggår
- 1920
- Driftskostnad
- 6 907 kr/månad
Avstyckad gård med många möjligheter!
Välkommen till en unik gård som erbjuder både lantlig charm och oändliga möjligheter! Här finns allt du behöver för att kombinera arbete, kreativitet och fritid – på en och samma plats. Mindre djurhållning kan förekomma med tanke på de 2 ha mark som tillhör fastigheten.
På gården finns en rymlig loge med karaktär, en praktisk verkstad för den händige, samt en trevlig affärsdel som lämpar sig perfekt för gårdsbutik, loppis, ateljé eller hantverksförsäljning.
Den lilla, mysiga sammansatta gårdsmiljön bjuder på trivsam atmosfär och gott om utrymme för både verksamhet och avkoppling. Omgivningarna bjuder på vacker natur och ett lugn som inspirerar till både skapande och företagsamhet. Interiören andas harmoni och omtanke, med vackra detaljer som gamla teglade väggar, kakelugn och en genomgående lantlig stil som inger värme och trivsel. Här möts rustikt och charm i en perfekt balans.
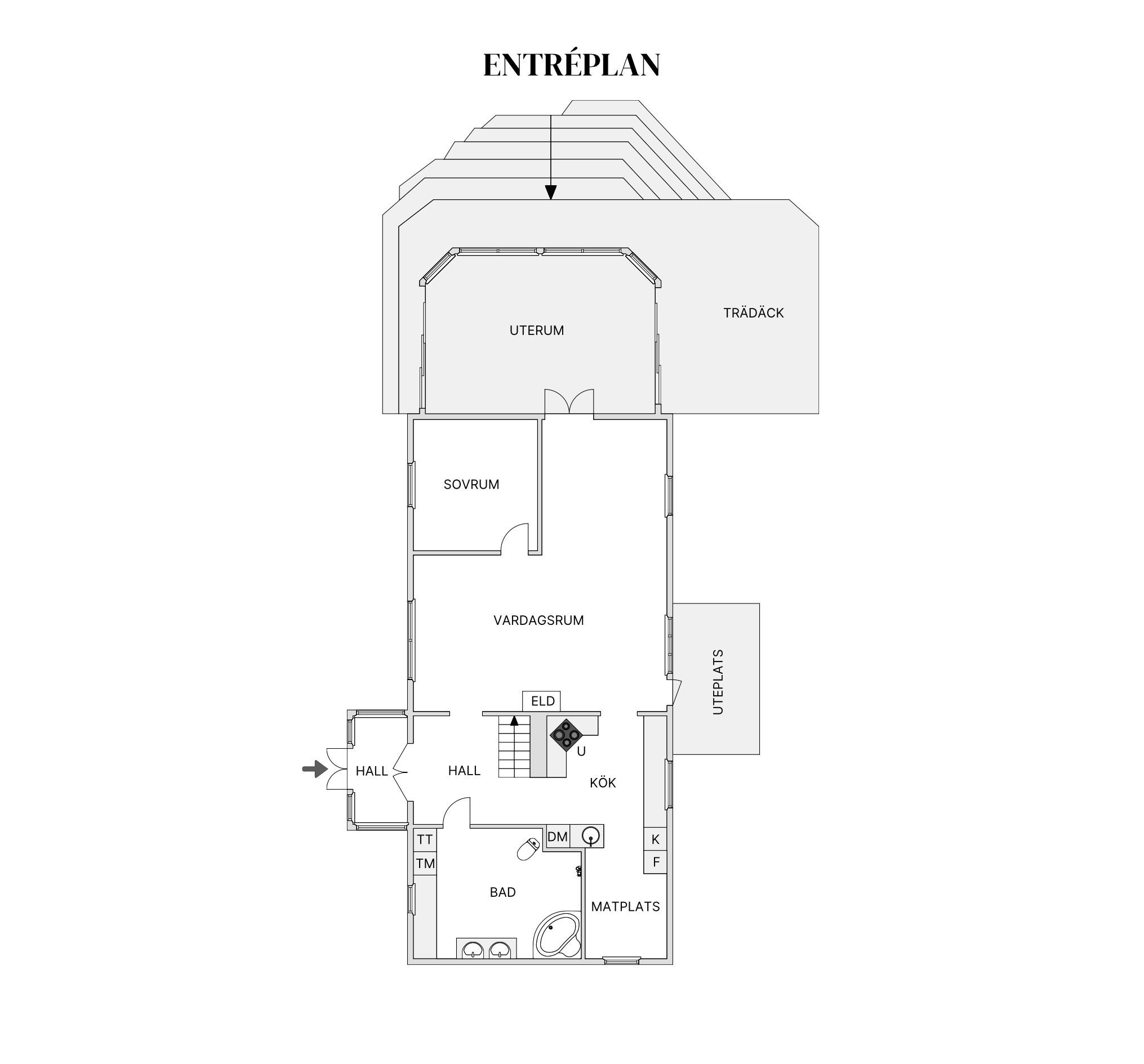
Det vinterbonade uterummet om cirka 25 kvm blir en självklar samlingsplats året om – lika härligt för långa middagar med nära och kära som för stilla stunder med en kopp kaffe under kyligare dagar.
Här finns chansen att skapa ditt drömprojekt – oavsett om du drömmer om att driva butik, utveckla en gårdsverksamhet eller helt enkelt njuta av livet på landet.
På gården finns en rymlig loge med karaktär, en praktisk verkstad för den händige, samt en trevlig affärsdel som lämpar sig perfekt för gårdsbutik, loppis, ateljé eller hantverksförsäljning.
Den lilla, mysiga sammansatta gårdsmiljön bjuder på trivsam atmosfär och gott om utrymme för både verksamhet och avkoppling. Omgivningarna bjuder på vacker natur och ett lugn som inspirerar till både skapande och företagsamhet. Interiören andas harmoni och omtanke, med vackra detaljer som gamla teglade väggar, kakelugn och en genomgående lantlig stil som inger värme och trivsel. Här möts rustikt och charm i en perfekt balans.
Det vinterbonade uterummet om cirka 25 kvm blir en självklar samlingsplats året om – lika härligt för långa middagar med nära och kära som för stilla stunder med en kopp kaffe under kyligare dagar.
Här finns chansen att skapa ditt drömprojekt – oavsett om du drömmer om att driva butik, utveckla en gårdsverksamhet eller helt enkelt njuta av livet på landet.
Bilder




Bostadsinformation
Ansvarig mäklare
Extra kontaktperson
Karta
Laholm Våxtorp
Sjöalt 405
Värdera din bostad
Fyll i formuläret så kontaktar vi dig inom kort
Pris (utgångspris)2 875 000 kr
Andra har också tittat på
1 / 0

