230
















1 / 16
Klintehamn
Sanda Runne 805G (tomt 19)
2 400 000 kr
Pris2 400 000 kr
Fakta om tomten
- Typ
- Tomt
- Tomtarea
- 2 028 kvm
Gotland Seaside - Exklusiva havsnära tomter
Drömmen om att vakna till havsbrisen kan bli verklighet. Gotland Seaside är ett exklusivt tomtområde beläget strax söder om vackra Västergarn på västra Gotland endast 25 min från Visby. Här får du närhet till Kronholmens golfbana, hav och natur i en av Gotlands mest unika miljöer.
Är du redo att göra fantastisk havsutsikt till vardag? Då är det bara att välja en tomt och börja bygga. The Greathouse Project erbjuder nyckelfärdiga huskoncept att teckna sig för, designade för att passa in i naturens omgivningar. Det finns som förslag 3 husmodeller som har ritats av gotländska arkitekten Katarina Ossiann och målet har varit att ha fokus på hållbarhet, att det ska vara vackra och i mångt och mycket cirkulära. Är du intresserad av att veta mer om husen anmäler du ditt intresse så kommer The Greathouse Project att kontakta dig.
Vill du hellre bygga något eget hus som passar in i området är du välkommen att göra det. Vatten och avlopp samt el finns i tomtgräns och anslutningsavgifterna ingår i tomtpriset.
Området inrymmer många olika naturvärden, några tomter vetter mot vidsträckt åkermark i söder där man kan skymta rådjuren i gryningen, några tomter är belägna med ryggen mot skogens lugn i öster, några tomter är belägna på ängsmark där en gammal kullerstensmur samsas med enbuskar och ek. Och så är det tomterna med en vidunderlig utsikt över havet.
Vad gör man då här en sommardag i juli kan man undra? Vad sägs om att börja dagen med frukost på terrassen, för att sedan ta en promenad till Västergarns hamn för ett morgondopp. Väl tillbaka i huset står solstolen redo för att du ska njuta av den sköna förmiddagssolen. Efter lunchen blir det en runda på Kronholmens golfbana eller varför inte en cykeltur och efter det avslutas dagen med en härlig grillkväll i den rent ut sagt magiska solnedgången.
För att göra en kort sammanfattning – Gotland Seaside ger dig en tillvaro där det enkla lugnet och vardagliga livet går hand i hand. Här njuter du av havet, den friska luften och att du faktiskt kan välja mellan en hel del aktiviteter eller bara ta det lugnt. En del tomter är redan sålda så tveka inte utan anmäl ditt intresse redan idag eller ring mäklaren Maria direkt för att säkra den tomt du vill ha.
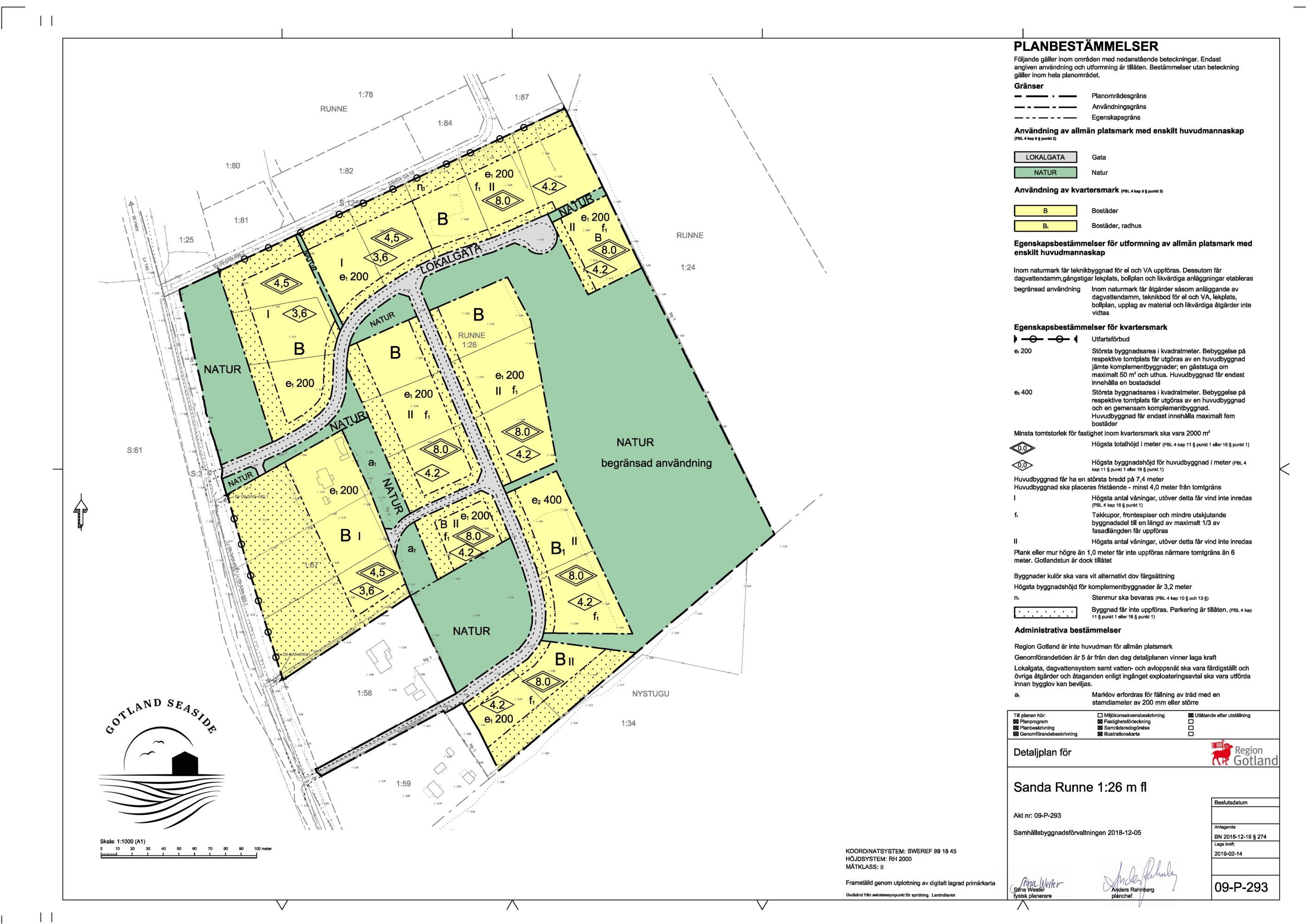
Under bilder finns tomtkartan där det syns vilka tomter som finns tillgängliga och vilka som är sålda
Är du redo att göra fantastisk havsutsikt till vardag? Då är det bara att välja en tomt och börja bygga. The Greathouse Project erbjuder nyckelfärdiga huskoncept att teckna sig för, designade för att passa in i naturens omgivningar. Det finns som förslag 3 husmodeller som har ritats av gotländska arkitekten Katarina Ossiann och målet har varit att ha fokus på hållbarhet, att det ska vara vackra och i mångt och mycket cirkulära. Är du intresserad av att veta mer om husen anmäler du ditt intresse så kommer The Greathouse Project att kontakta dig.
Vill du hellre bygga något eget hus som passar in i området är du välkommen att göra det. Vatten och avlopp samt el finns i tomtgräns och anslutningsavgifterna ingår i tomtpriset.
Området inrymmer många olika naturvärden, några tomter vetter mot vidsträckt åkermark i söder där man kan skymta rådjuren i gryningen, några tomter är belägna med ryggen mot skogens lugn i öster, några tomter är belägna på ängsmark där en gammal kullerstensmur samsas med enbuskar och ek. Och så är det tomterna med en vidunderlig utsikt över havet.
Vad gör man då här en sommardag i juli kan man undra? Vad sägs om att börja dagen med frukost på terrassen, för att sedan ta en promenad till Västergarns hamn för ett morgondopp. Väl tillbaka i huset står solstolen redo för att du ska njuta av den sköna förmiddagssolen. Efter lunchen blir det en runda på Kronholmens golfbana eller varför inte en cykeltur och efter det avslutas dagen med en härlig grillkväll i den rent ut sagt magiska solnedgången.
För att göra en kort sammanfattning – Gotland Seaside ger dig en tillvaro där det enkla lugnet och vardagliga livet går hand i hand. Här njuter du av havet, den friska luften och att du faktiskt kan välja mellan en hel del aktiviteter eller bara ta det lugnt. En del tomter är redan sålda så tveka inte utan anmäl ditt intresse redan idag eller ring mäklaren Maria direkt för att säkra den tomt du vill ha.
Under bilder finns tomtkartan där det syns vilka tomter som finns tillgängliga och vilka som är sålda
Bilder




Ansvarig mäklare
Extra kontaktperson
Karta
Gotland Klintehamn
Sanda Runne 805G (tomt 19)
Värdera din bostad
Fyll i formuläret så kontaktar vi dig inom kort
Pris2 400 000 kr
Andra har också tittat på
1 / 0

