230























1 / 23
Bromma Nockebyhov, Bromma
Rånövägen 7
3 250 000 kr
Pris3 250 000 kr
Fakta om bostaden
- Typ
- Lägenhet
- Upplåtelseform
- Bostadsrätt
- Antal rum
- 3 rok
- Boarea
- 62 kvm
- Våning
- 3
- Lägenhetsnummer
- 1202
- Månadsavgift
- 6 913 kr *
- Byggår
- 1931
- Pris
- 3 250 000 kr
Övriga månadsavgifter
* I avgiften ingår värme, vatten samt bredband och basutbud TV
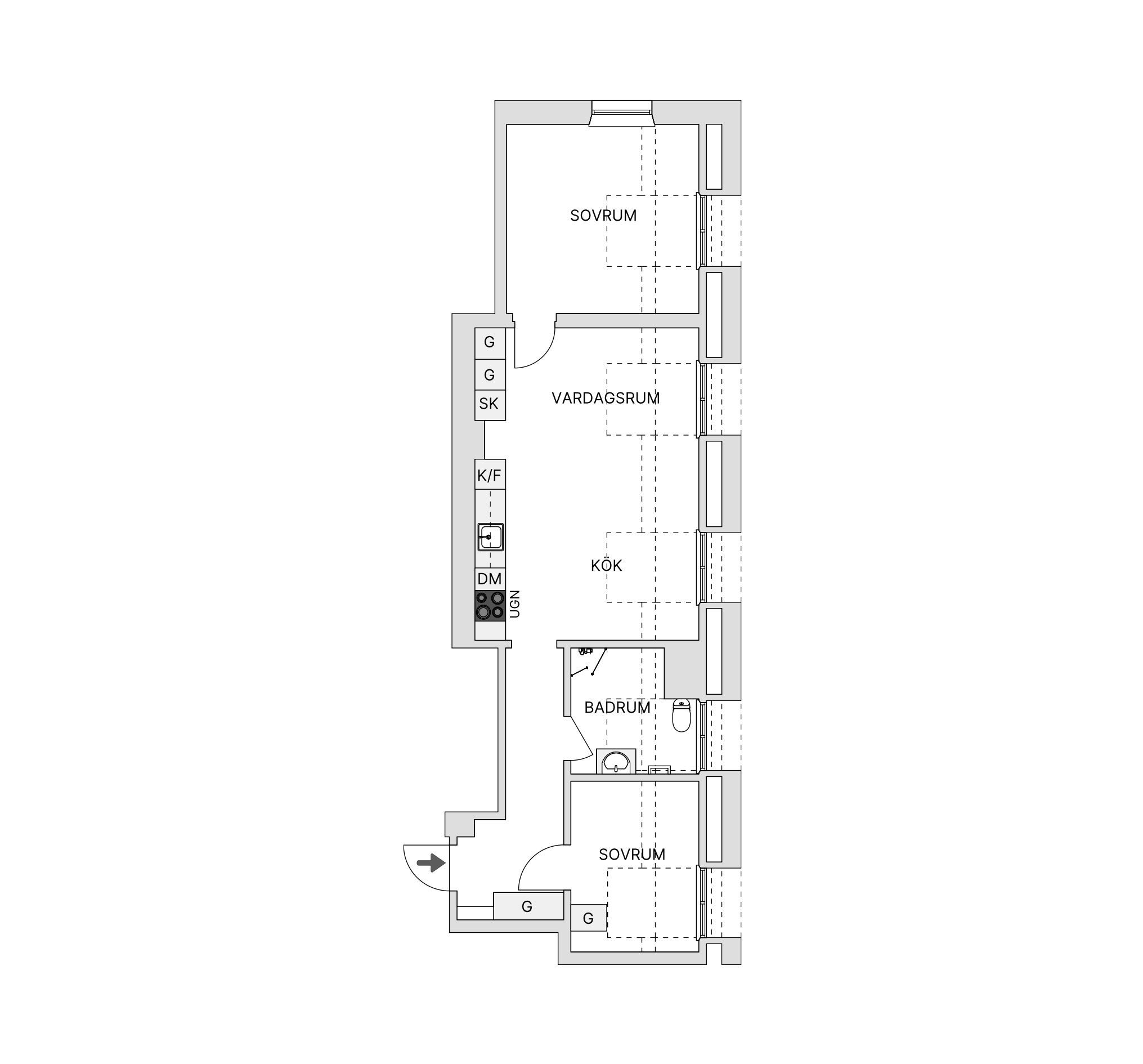
Vindlägenhet med takåsutsikt i charmiga Nockebyhov!
Välkommen till denna ljusa och insynsfria vindslägenhet med fantastisk utsikt över takåsarna i idylliska Nockebyhov. Bostaden präglas av generösa ljusinsläpp från flera väderstreck och en genomgående ljus och fräsch känsla.
Här bor du högst upp i huset med fullständig avskildhet. Den öppna planlösningen mellan kök och vardagsrum skapar ett luftigt och socialt utrymme – perfekt för både vardagsliv och umgänge. Bostaden erbjuder två rymliga sovrum med plats för dubbelsäng och god förvaring. Det helkaklade badrummet är utrustat med ett stort fönster som ger ett härligt dagsljus – en sällsynt detalj som höjer vardagskvaliteten.
Detta är ett hem för dig som söker något utöver det vanliga – med karaktär, komfort och ett lugnt läge nära natur och kommunikationer.
Perfekt läge med närhet till både natur och stadspuls. Här bor du med direkt närhet till det bästa Bromma har att erbjuda – från vackra naturreservat och badplatser till restauranger och caféer. Brommaplans breda utbud av service, butiker och kommunikationer nås smidigt till fots. Buss stannar precis runt hörnet och tar dig till Brommaplan på bara någon minut, där tunnelbanans gröna linje samt ett flertal busslinjer enkelt tar dig vidare in mot stan eller ut i naturen.
Besök gärna föreningen informativa hemsida https://brf-kaffekoppen-2.webnode.se/
Välkomna att höra av er vid intresse till isak.oddsson@husmanhagberg.se
Här bor du högst upp i huset med fullständig avskildhet. Den öppna planlösningen mellan kök och vardagsrum skapar ett luftigt och socialt utrymme – perfekt för både vardagsliv och umgänge. Bostaden erbjuder två rymliga sovrum med plats för dubbelsäng och god förvaring. Det helkaklade badrummet är utrustat med ett stort fönster som ger ett härligt dagsljus – en sällsynt detalj som höjer vardagskvaliteten.
Detta är ett hem för dig som söker något utöver det vanliga – med karaktär, komfort och ett lugnt läge nära natur och kommunikationer.
Perfekt läge med närhet till både natur och stadspuls. Här bor du med direkt närhet till det bästa Bromma har att erbjuda – från vackra naturreservat och badplatser till restauranger och caféer. Brommaplans breda utbud av service, butiker och kommunikationer nås smidigt till fots. Buss stannar precis runt hörnet och tar dig till Brommaplan på bara någon minut, där tunnelbanans gröna linje samt ett flertal busslinjer enkelt tar dig vidare in mot stan eller ut i naturen.
Besök gärna föreningen informativa hemsida https://brf-kaffekoppen-2.webnode.se/
Välkomna att höra av er vid intresse till isak.oddsson@husmanhagberg.se
Bilder




Ansvarig mäklare
Karta
Stockholm Bromma Nockebyhov
Rånövägen 7
Boendekalkyl
Se din boendekostnad direkt. Framräknad kostnad är en indikation på vilken boendekostnad ni kan få efter era förutsättningar. Kalkylen tillhandahålls av Lånekoll.
Värdera din bostad
Fyll i formuläret så kontaktar vi dig inom kort
Pris3 250 000 kr
Andra har också tittat på
1 / 0
