
























































1 / 57
Östra Ljungby
Pilagatan 12A-C, Stationsvägen 6
5 995 000 kr
Pris5 995 000 kr
Fakta om fastigheten
- Typ
- Hyresfastighet
- Tomtarea
- 2 002 kvm
- Driftskostnad
- 11 548 kr/månad
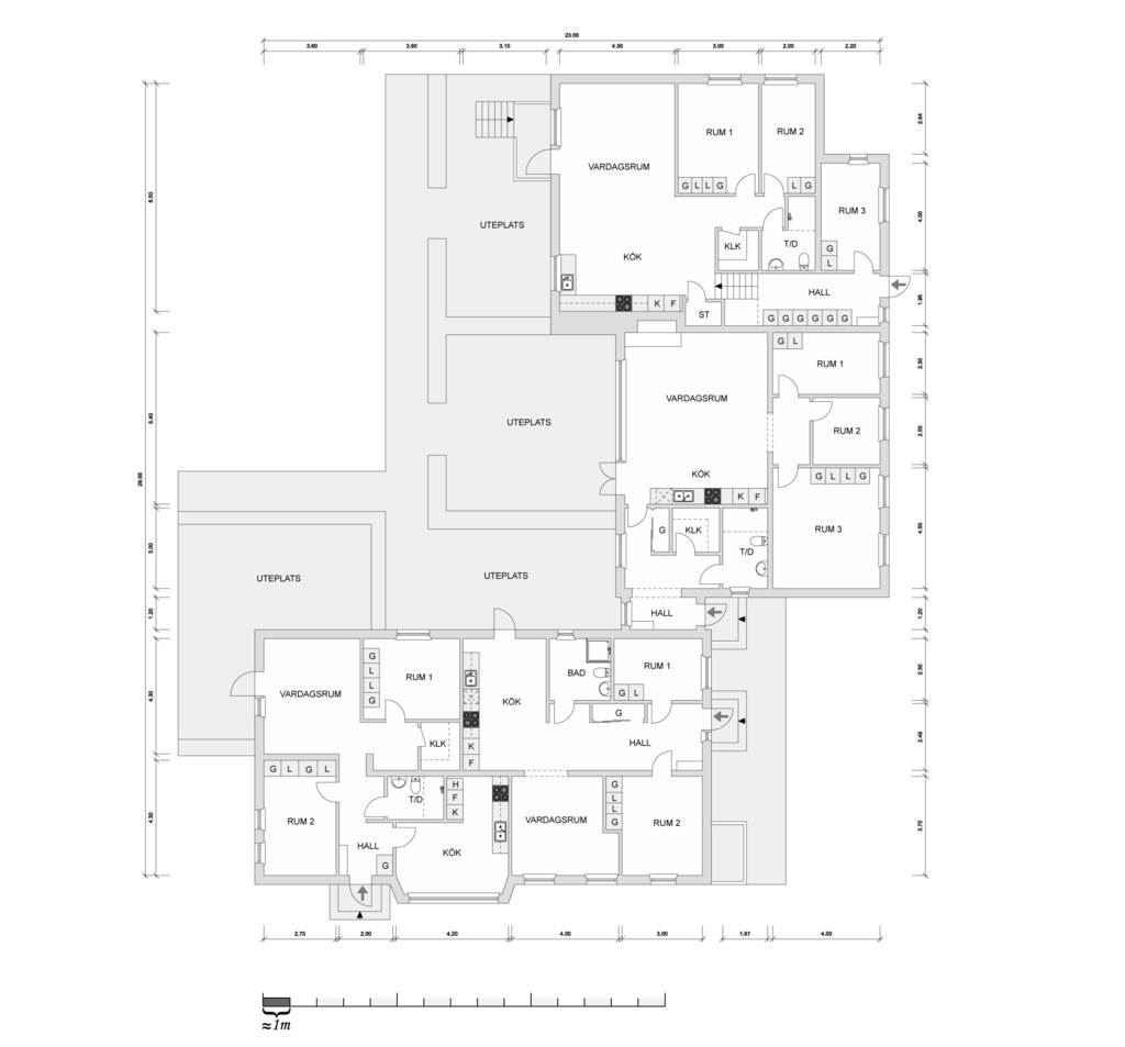
Centralt i Östra Ljungby finner ni denna välskötta hyresfastighet med ett attraktivt och lättförvaltat upplägg. Fastigheten består av fyra separata marklägenheter, fördelade på två fyrarumslägenheter och två trerumslägenheter – samtliga med genomgående god standard.
Bostäderna har löpande renoverats och erbjuder uppdaterade kök och badrum samt moderna treglasfönster. Varje lägenhet har dessutom egna stenlagda uteplatser på både fram- och baksida, vilket skapar ett trivsamt boende med radhuskänsla. På fastigheten finns även en generös gemensam gräsyta som gränsar till ett mindre parkområde.
Under Pilagatan 12 A finns källarutrymmen med garage, lägenhetsförråd och pannrum. Till varje lägenhet hör egen carport, och på området finns även ett separat miljöhus som underlättar sophanteringen.
Byggnaderna är uppförda med tegelstomme och tegelfasad, vilket ger ett hållbart och underhållssnålt yttre. Uppvärmning sker via fjärrvärme, vilket bidrar till en stabil och driftsäker ekonomi.
Fastigheten genererar idag hyresintäkter om cirka 535 000 kr per år och utgör en stabil investering. Det goda skicket innebär att du som ny ägare kan fortsätta förvalta fastigheten utan större initiala investeringar.
Fastigheten ingår i ett större fastighetsbestånd i Klippan och Östra Ljungby. För den som är intresserad av ett större förvärv finns möjlighet att diskutera köp av fler fastigheter eller hela bolaget.
Varmt välkommen att kontakta ansvarig mäklare för mer information.
Bostäderna har löpande renoverats och erbjuder uppdaterade kök och badrum samt moderna treglasfönster. Varje lägenhet har dessutom egna stenlagda uteplatser på både fram- och baksida, vilket skapar ett trivsamt boende med radhuskänsla. På fastigheten finns även en generös gemensam gräsyta som gränsar till ett mindre parkområde.
Under Pilagatan 12 A finns källarutrymmen med garage, lägenhetsförråd och pannrum. Till varje lägenhet hör egen carport, och på området finns även ett separat miljöhus som underlättar sophanteringen.
Byggnaderna är uppförda med tegelstomme och tegelfasad, vilket ger ett hållbart och underhållssnålt yttre. Uppvärmning sker via fjärrvärme, vilket bidrar till en stabil och driftsäker ekonomi.
Fastigheten genererar idag hyresintäkter om cirka 535 000 kr per år och utgör en stabil investering. Det goda skicket innebär att du som ny ägare kan fortsätta förvalta fastigheten utan större initiala investeringar.
Fastigheten ingår i ett större fastighetsbestånd i Klippan och Östra Ljungby. För den som är intresserad av ett större förvärv finns möjlighet att diskutera köp av fler fastigheter eller hela bolaget.
Varmt välkommen att kontakta ansvarig mäklare för mer information.
Bilder




Bostadsinformation
Ansvarig mäklare
Karta
Klippan Östra Ljungby
Pilagatan 12A-C, Stationsvägen 6
Värdera din bostad
Fyll i formuläret så kontaktar vi dig inom kort
Pris5 995 000 kr
Andra har också tittat på
1 / 0
