190















1 / 15
Östra Ljungby, Klippan
Kärngatan 6
1 650 000 kr
Pris1 650 000 kr
Fakta om bostaden
- Typ
- Friliggande villa
- Upplåtelseform
- Friköpt
- Antal rum
- 4 rok
- Boarea
- 131 kvm
- Biarea
- 74 kvm
- Tomtarea
- 1 007 kvm
- Byggår
- 1982
- Pris
- 1 650 000 kr
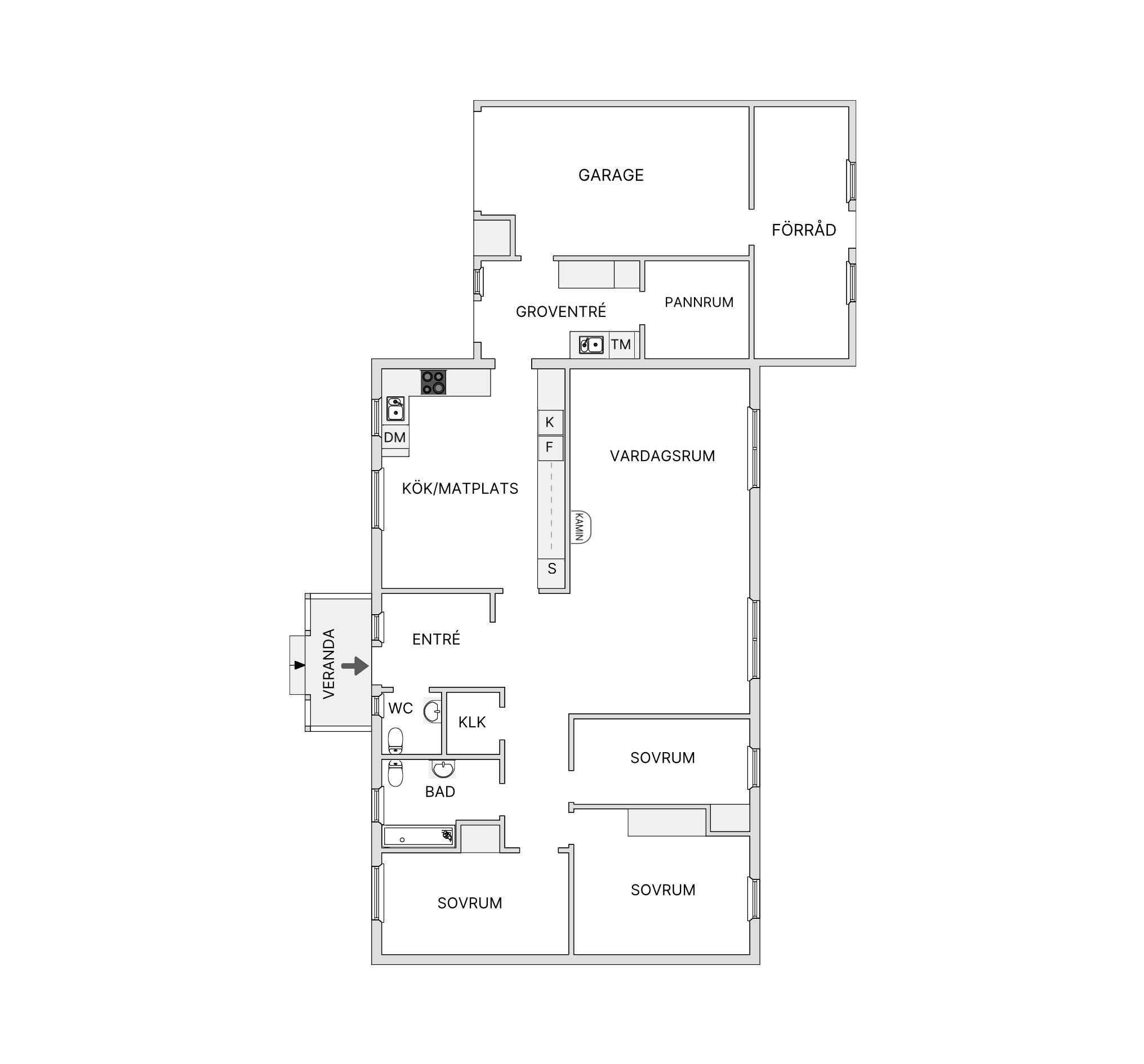
Energieffektiv 1-plansvilla i Källna
Snart ges möjlighet att förvärva denna hemtrevliga och välplanerade enplansvilla om 131 + 74 kvm, belägen på lugnt läge i Källna. Bostaden, uppförd 1982, erbjuder 4 rum och kök samt tvättstuga, badrum och gästtoalett – allt bekvämt samlat på ett plan, vilket gör huset passande för alla åldrar och livsskeden. Här bor du med det perfekta läget mellan Östra Ljungby och Ängelholm samt med smidig anslutning till E4:an – idealiskt för dig som pendlar men samtidigt vill njuta av lugnet på landet.
Här möts du av generösa och inbjudande sällskapsytor i både kök och vardagsrum. För den som önskar finns möjlighet att öppna upp och skapa en ännu mer luftig planlösning mellan rummen. I vardagsrummet skapar den öppna spisen med kassett både värme och trivsel, och härifrån nås den stenlagda uteplatsen – en naturlig plats för sommarens måltider och umgänge.
Praktiska ytor finns i form av groventré med tvättstuga samt pannrum med goda förvaringsmöjligheter. Det vidbyggda garaget har direkt anslutning till huset och leder vidare till ett uppvärmt förråd.
Tomten om ca 1 007 kvm är lättskött med plan gräsmatta som omger huset, och som hörntomt erbjuds en luftig och trivsam känsla.
Huset värms upp via energieffektiv jordvärme. I kombination med solcellsanläggning samt FTX-ventilation ger detta låga driftkostnader och en energiklassificering i betyg B – vilket dessutom möjliggör grönt bolån.
Här erbjuds ett bekvämt boende i lugn miljö med närhet till både natur, service och goda pendlingsmöjligheter.
Välkomna att anmäla ert intresse redan nu!
Här möts du av generösa och inbjudande sällskapsytor i både kök och vardagsrum. För den som önskar finns möjlighet att öppna upp och skapa en ännu mer luftig planlösning mellan rummen. I vardagsrummet skapar den öppna spisen med kassett både värme och trivsel, och härifrån nås den stenlagda uteplatsen – en naturlig plats för sommarens måltider och umgänge.
Praktiska ytor finns i form av groventré med tvättstuga samt pannrum med goda förvaringsmöjligheter. Det vidbyggda garaget har direkt anslutning till huset och leder vidare till ett uppvärmt förråd.
Tomten om ca 1 007 kvm är lättskött med plan gräsmatta som omger huset, och som hörntomt erbjuds en luftig och trivsam känsla.
Huset värms upp via energieffektiv jordvärme. I kombination med solcellsanläggning samt FTX-ventilation ger detta låga driftkostnader och en energiklassificering i betyg B – vilket dessutom möjliggör grönt bolån.
Här erbjuds ett bekvämt boende i lugn miljö med närhet till både natur, service och goda pendlingsmöjligheter.
Välkomna att anmäla ert intresse redan nu!
Bilder




Bostadsinformation
Ansvarig mäklare
Karta
Klippan Östra Ljungby
Kärngatan 6
Värdera din bostad
Fyll i formuläret så kontaktar vi dig inom kort
Pris1 650 000 kr
Boendekalkyl
Se din boendekostnad direkt. Framräknad kostnad är en indikation på vilken boendekostnad ni kan få efter era förutsättningar.
Andra har också tittat på
1 / 0
