230



















1 / 19
Helsingborg
Fyrhögagatan 30
795 000 kr
Pris795 000 kr
Fakta om bostaden
- Typ
- Lägenhet
- Upplåtelseform
- Bostadsrätt
- Antal rum
- 4 rok
- Boarea
- 110 kvm
- Lägenhetsnummer
- 57
- Månadsavgift
- 9 246 kr
- Byggår
- 1990
- Pris
- 795 000 kr
Kommentar till månadsavgift
*
Trivsamt radhus med två plan i populära Bårslöv – modernt kök från 2023 och tre sovrum
Välkommen till detta välplanerade radhus i två plan, beläget i lugna och familjevänliga Bårslöv. Här erbjuds ett hem som kombinerar funktionalitet med moderna uppdateringar – perfekt för barnfamiljen eller för dig som söker ett bekvämt boende med närhet till både stad och natur.
Entréplanet bjuder på ett stilrent och modernt kök från 2023 med goda arbetsytor och plats för matbord. Bostadens ena sovrum finner du på entréplan. Här finns alla förutsättningar för både vardagsmiddagar och trevliga sammankomster. Det rymliga vardagsrummet har ett fint ljusinsläpp och utgång till tomten – en härlig förlängning av bostaden under årets varmare månader.
På entréplanet finns även en praktisk gäst-WC.
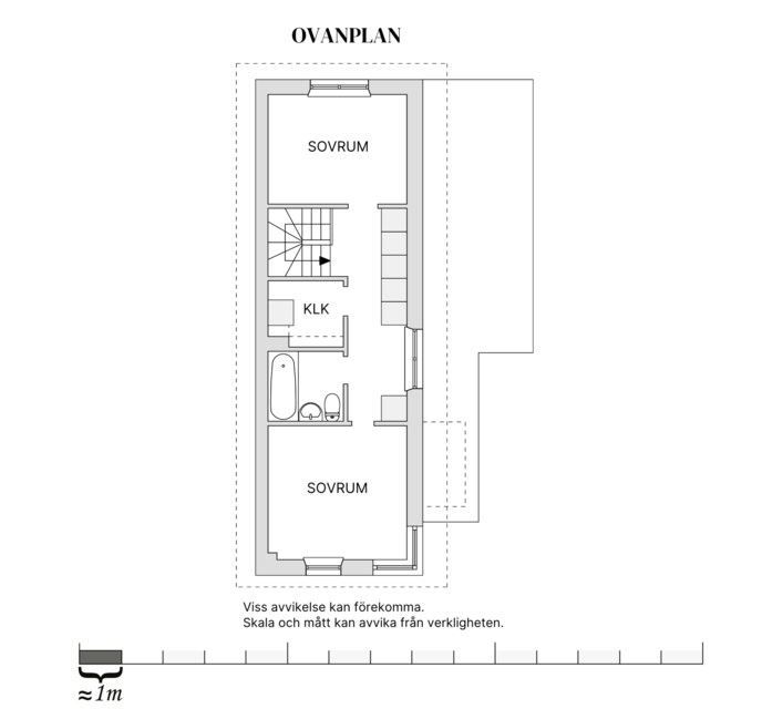
Övre plan rymmer 2 sovrum med bra storlek och flexibla användningsmöjligheter – perfekt som barnrum, kontor eller gästrum. Här finns också ett badrum utrustat med badkar samt en rymlig klädkammare som ger gott om förvaringsmöjligheter.
Tomten erbjuder plats för lek, odling eller avkoppling i en privat och lättskött miljö.
Här bor du i ett trivsamt område med närhet till service, skolor och goda kommunikationer.
Varmt välkommen att boka visning!
Välkommen till detta välplanerade radhus i två plan, beläget i lugna och familjevänliga Bårslöv. Här erbjuds ett hem som kombinerar funktionalitet med moderna uppdateringar – perfekt för barnfamiljen eller för dig som söker ett bekvämt boende med närhet till både stad och natur.
Entréplanet bjuder på ett stilrent och modernt kök från 2023 med goda arbetsytor och plats för matbord. Bostadens ena sovrum finner du på entréplan. Här finns alla förutsättningar för både vardagsmiddagar och trevliga sammankomster. Det rymliga vardagsrummet har ett fint ljusinsläpp och utgång till tomten – en härlig förlängning av bostaden under årets varmare månader.
På entréplanet finns även en praktisk gäst-WC.
Övre plan rymmer 2 sovrum med bra storlek och flexibla användningsmöjligheter – perfekt som barnrum, kontor eller gästrum. Här finns också ett badrum utrustat med badkar samt en rymlig klädkammare som ger gott om förvaringsmöjligheter.
Tomten erbjuder plats för lek, odling eller avkoppling i en privat och lättskött miljö.
Här bor du i ett trivsamt område med närhet till service, skolor och goda kommunikationer.
Varmt välkommen att boka visning!
Bilder




Ansvarig mäklare
Karta
Helsingborg Helsingborg
Fyrhögagatan 30
Värdera din bostad
Fyll i formuläret så kontaktar vi dig inom kort
Pris795 000 kr
Boendekalkyl
Se din boendekostnad direkt. Framräknad kostnad är en indikation på vilken boendekostnad ni kan få efter era förutsättningar.
Andra har också tittat på
1 / 0
