190






1 / 6
Råå, Råå
Högastensgatan 3
1 295 000 kr
Pris1 295 000 kr
Fakta om bostaden
- Typ
- Lägenhet
- Upplåtelseform
- Bostadsrätt
- Antal rum
- 2.5 rok
- Boarea
- 66 kvm
- Lägenhetsnummer
- 120
- Månadsavgift
- 4 693 kr
- Byggår
- 1958
- Pris
- 1 295 000 kr
Övriga månadsavgifter
*
Ljus och trivsam 2,5:a med gavel-läge och inglasad balkong – nära havet och Råå hamn
Välkommen hem till denna välplanerade och hemtrevliga bostad med ett lugnt och attraktivt läge nära havet, stranden och idylliska Råå hamn. Här bor du med naturen runt knuten och med bekväm närhet till både service och kommunikationer.
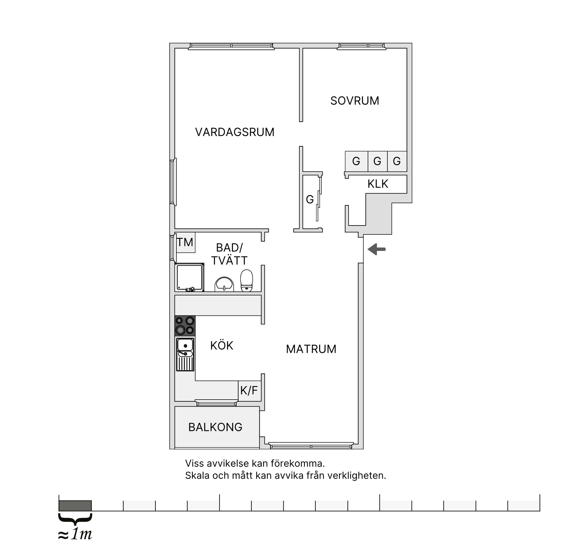
Kök med matplats & utgång till inglasad balkong
Från matdelen når du den inglasade balkongen – en härlig extra yta som kan nyttjas året om.
Ljust vardagsrum och bra sovrum.
Vardagsrummet är rymligt och har fint ljusinsläpp. Härifrån når du sovrummet, som även nås via en praktisk passage från hallen – en genomtänkt lösning som skapar smidiga flöden i bostaden.
Badrum med fönster
Badrummet är utrustat med dusch och har ett fönster som ger naturligt ljus och god ventilation.
Naturnära och rofyllt läge
Här bor du i ett uppskattat läge – nära strandpromenader, havsbris och den charmiga småbåtshamnen på Råå. Ett boende för dig som vill kombinera lugn, livskvalitet och närhet till havet.
Välkommen hem till denna välplanerade och hemtrevliga bostad med ett lugnt och attraktivt läge nära havet, stranden och idylliska Råå hamn. Här bor du med naturen runt knuten och med bekväm närhet till både service och kommunikationer.
Kök med matplats & utgång till inglasad balkong
Från matdelen når du den inglasade balkongen – en härlig extra yta som kan nyttjas året om.
Ljust vardagsrum och bra sovrum.
Vardagsrummet är rymligt och har fint ljusinsläpp. Härifrån når du sovrummet, som även nås via en praktisk passage från hallen – en genomtänkt lösning som skapar smidiga flöden i bostaden.
Badrum med fönster
Badrummet är utrustat med dusch och har ett fönster som ger naturligt ljus och god ventilation.
Naturnära och rofyllt läge
Här bor du i ett uppskattat läge – nära strandpromenader, havsbris och den charmiga småbåtshamnen på Råå. Ett boende för dig som vill kombinera lugn, livskvalitet och närhet till havet.
Bilder




Ansvarig mäklare
Karta
Helsingborg Råå
Högastensgatan 3
Boendekalkyl
Se din boendekostnad direkt. Framräknad kostnad är en indikation på vilken boendekostnad ni kan få efter era förutsättningar. Kalkylen tillhandahålls av Lånekoll.
Värdera din bostad
Fyll i formuläret så kontaktar vi dig inom kort
Pris1 295 000 kr
Andra har också tittat på
1 / 0
