230

















































1 / 49
Budgivning
Vallastaden, Linköping
Uppfinnargränd 12
Fakta om bostaden
- Typ
- Radhus
- Upplåtelseform
- Friköpt
- Antal rum
- 6 rok
- Boarea
- 165 kvm
- Biarea
- 9 kvm
- Tomtarea
- 202 kvm
- Byggår
- 2020
Modernt radhus i Vallastaden med privat utemiljö och takterrass
I hjärtat av prisbelönta Vallastaden reser sig detta moderna radhus i eftertraktat hörnläge – ett hem där arkitektur, estetik och funktion samspelar på ett sätt som lika gärna kunde vara hämtat ur ett internationellt inredningsmagasin.
Den mörka träfasaden ger ett självsäkert och tidlöst uttryck. Framsidan välkomnar med ett elegant växthus, arkitektoniskt sammanfogat med huset – ett lika praktiskt som stämningsfullt tillskott. Här finns utrymme för cyklar och barnvagn, men också en inspirerande plats för sociala stunder, middagar eller en grönskande entré som sätter tonen redan vid ankomst.
Baksidan är mer privat till sin karaktär och vilar på ett stilrent fundament i betong. Här öppnar sig en skyddad och omsorgsfullt utformad utemiljö där växter, sittplatser och en inbjudande utespa samspelar i en harmonisk helhet – en plats för avkoppling och återhämtning, diskret avskild från omgivningen.
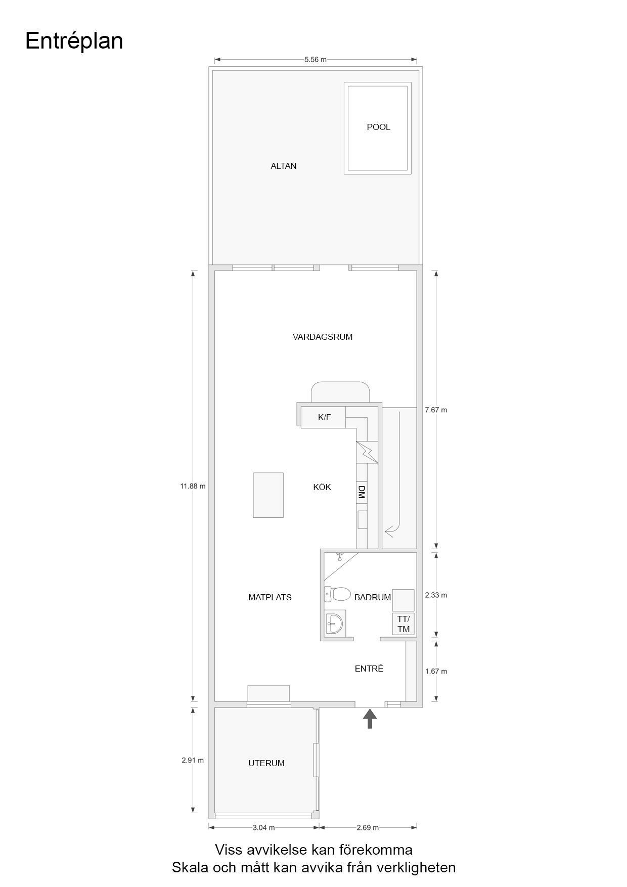
Bostaden omfattar generösa 165 kvm fördelade på fyra sovrum, vilket skapar ett optimalt hem för barnfamiljen som söker ett bekymmersfritt och stilfullt boende. Redan i den välkomnande hallen möts du av rymd och genomtänkta materialval. Intill ligger ett elegant badrum med moderna ytskikt och praktiska tvättmöjligheter.
Köket från Vedum – i en sofistikerad grön kulör – är hemmets självklara nav. Här möts exklusiv hantverkskänsla och samtida design i perfekt balans. Den öppna planlösningen mot matplats och vardagsrum skapar generösa sällskapsytor där stora fönsterpartier och utgång till baksidan suddar ut gränsen mellan inne och ute under årets ljusa månader.
På det andra planet väntar fyra väl tilltagna sovrum samt ytterligare ett badrum i modern och tidlös stil. Rummen är flexibla och kan enkelt anpassas efter livets olika skeden – som sovrum, hemmakontor, lekrum eller ett extra allrum.
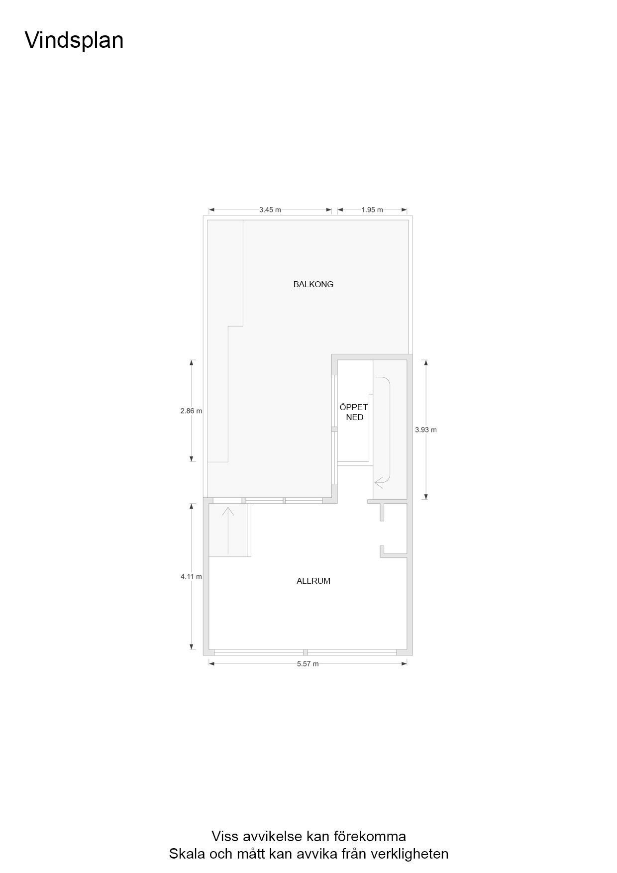
Högst upp i huset finner du en ljus och inspirerande studio med stora fönster mot omgivande bebyggelse och direkt access till en generös takterrass. Här öppnar sig möjligheterna: odlingar, loungemiljö, middagar i kvällssolen eller ett privat utegym – allt med ett fritt läge och njutbar kvällssol.
Huset är nyproducerat 2020 och påkostat med moderna installationer, energieffektiva lösningar och slitstarka materialval som borgar för låga driftskostnader, minimalt underhåll och lång teknisk livslängd.
Vallastaden är Linköpings mest samtida stadsdel – präglad av hållbar stadsplanering, bilfria stråk, pocketparker och levande mötesplatser. Campus Valla, Science Park, förskolor och skolor ligger inom bekvämt avstånd, liksom caféer, service och närhandel. Med utmärkta cykelvägar och täta bussförbindelser når du snabbt city, universitetssjukhuset och större handelsområden. För naturälskaren väntar Tinnerö eklandskap runt hörnet – med milslånga stigar för promenader, löpning och rekreation.
Den mörka träfasaden ger ett självsäkert och tidlöst uttryck. Framsidan välkomnar med ett elegant växthus, arkitektoniskt sammanfogat med huset – ett lika praktiskt som stämningsfullt tillskott. Här finns utrymme för cyklar och barnvagn, men också en inspirerande plats för sociala stunder, middagar eller en grönskande entré som sätter tonen redan vid ankomst.
Baksidan är mer privat till sin karaktär och vilar på ett stilrent fundament i betong. Här öppnar sig en skyddad och omsorgsfullt utformad utemiljö där växter, sittplatser och en inbjudande utespa samspelar i en harmonisk helhet – en plats för avkoppling och återhämtning, diskret avskild från omgivningen.
Bostaden omfattar generösa 165 kvm fördelade på fyra sovrum, vilket skapar ett optimalt hem för barnfamiljen som söker ett bekymmersfritt och stilfullt boende. Redan i den välkomnande hallen möts du av rymd och genomtänkta materialval. Intill ligger ett elegant badrum med moderna ytskikt och praktiska tvättmöjligheter.
Köket från Vedum – i en sofistikerad grön kulör – är hemmets självklara nav. Här möts exklusiv hantverkskänsla och samtida design i perfekt balans. Den öppna planlösningen mot matplats och vardagsrum skapar generösa sällskapsytor där stora fönsterpartier och utgång till baksidan suddar ut gränsen mellan inne och ute under årets ljusa månader.
På det andra planet väntar fyra väl tilltagna sovrum samt ytterligare ett badrum i modern och tidlös stil. Rummen är flexibla och kan enkelt anpassas efter livets olika skeden – som sovrum, hemmakontor, lekrum eller ett extra allrum.
Högst upp i huset finner du en ljus och inspirerande studio med stora fönster mot omgivande bebyggelse och direkt access till en generös takterrass. Här öppnar sig möjligheterna: odlingar, loungemiljö, middagar i kvällssolen eller ett privat utegym – allt med ett fritt läge och njutbar kvällssol.
Huset är nyproducerat 2020 och påkostat med moderna installationer, energieffektiva lösningar och slitstarka materialval som borgar för låga driftskostnader, minimalt underhåll och lång teknisk livslängd.
Vallastaden är Linköpings mest samtida stadsdel – präglad av hållbar stadsplanering, bilfria stråk, pocketparker och levande mötesplatser. Campus Valla, Science Park, förskolor och skolor ligger inom bekvämt avstånd, liksom caféer, service och närhandel. Med utmärkta cykelvägar och täta bussförbindelser når du snabbt city, universitetssjukhuset och större handelsområden. För naturälskaren väntar Tinnerö eklandskap runt hörnet – med milslånga stigar för promenader, löpning och rekreation.
Bilder




Ansvarig mäklare
Karta
Linköping Vallastaden
Uppfinnargränd 12
Värdera din bostad
Fyll i formuläret så kontaktar vi dig inom kort
Boendekalkyl
Se din boendekostnad direkt. Framräknad kostnad är en indikation på vilken boendekostnad ni kan få efter era förutsättningar.
Andra har också tittat på
1 / 0
