230


















1 / 18
Östra Ljungby, Östra Ljungby
Nygatan 9
1 495 000 kr
Pris1 495 000 kr
Fakta om bostaden
- Typ
- Friliggande villa
- Upplåtelseform
- Friköpt
- Antal rum
- 4 rok
- Boarea
- 91 kvm
- Biarea
- 91 kvm
- Tomtarea
- 1 006 kvm
- Byggår
- 1962
- Driftskostnad
- 2 412 kr/månad
- Pris
- 1 495 000 kr
Familjevilla med källare på hörntomt i Östra Ljungby!
På en lugn hörntomt i Östra Ljungby finner du Nygatan 9 – en trivsam familjevilla i ett plan med källare, om totalt 91 + 91 kvm.
Huset har under de senaste åren fått flera bekväma uppdateringar. År 2020 installerades en luft/vattenvärmepump och 2021 gjordes en ny dränering runt hela huset, vilket skapat ett behagligare klimat i källaren. Invändigt har samtliga rum målats om och fräschats upp.
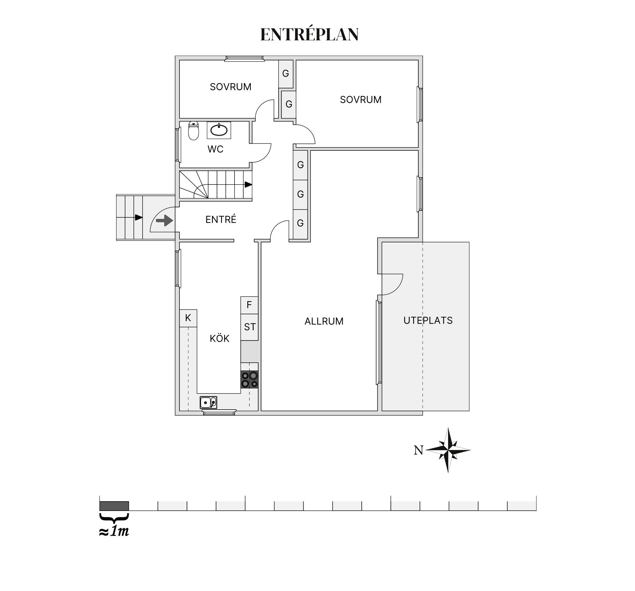
Entréplanet fördelas på fyra rum och kök, varav tre är sovrum samt ett badrum. Redan i hallen möts du av gott om garderober för praktisk förvaring. Köket, från Ballingslöv, har plats för ett matbord för fyra personer och gott om arbetsyta. Vardagsrummet bjuder på härligt ljusinsläpp genom stora fönsterpartier och har utgång till uteplatsen på framsidan. Här finns även tre rymliga sovrum och ett badrum utrustat med WC och tvättställ. Badrummets golvbrunn gör det enkelt att komplettera med duschkabin eller bygga en duschhörna.
Den inredda källaren erbjuder gott om funktionella ytor. Här finns en stor tvättstuga med badrum, förråd samt en generös gillestuga som nyligen renoverats. Från källaren når du dessutom det praktiska garaget.
Tomten om ca 1000 kvm är lättskött med gräsmatta och singel. Här finns flera trevliga uteplatser i olika väderstreck samt plats för odling eller andra trädgårdsintressen.
Välkommen att kontakta ansvarig mäklare, Adam Lock, på 076-000 10 43 för mer information.
Huset har under de senaste åren fått flera bekväma uppdateringar. År 2020 installerades en luft/vattenvärmepump och 2021 gjordes en ny dränering runt hela huset, vilket skapat ett behagligare klimat i källaren. Invändigt har samtliga rum målats om och fräschats upp.
Entréplanet fördelas på fyra rum och kök, varav tre är sovrum samt ett badrum. Redan i hallen möts du av gott om garderober för praktisk förvaring. Köket, från Ballingslöv, har plats för ett matbord för fyra personer och gott om arbetsyta. Vardagsrummet bjuder på härligt ljusinsläpp genom stora fönsterpartier och har utgång till uteplatsen på framsidan. Här finns även tre rymliga sovrum och ett badrum utrustat med WC och tvättställ. Badrummets golvbrunn gör det enkelt att komplettera med duschkabin eller bygga en duschhörna.
Den inredda källaren erbjuder gott om funktionella ytor. Här finns en stor tvättstuga med badrum, förråd samt en generös gillestuga som nyligen renoverats. Från källaren når du dessutom det praktiska garaget.
Tomten om ca 1000 kvm är lättskött med gräsmatta och singel. Här finns flera trevliga uteplatser i olika väderstreck samt plats för odling eller andra trädgårdsintressen.
Välkommen att kontakta ansvarig mäklare, Adam Lock, på 076-000 10 43 för mer information.
Bilder




Ansvarig mäklare
Karta
Klippan Östra Ljungby
Nygatan 9
Boendekalkyl
Se din boendekostnad direkt. Framräknad kostnad är en indikation på vilken boendekostnad ni kan få efter era förutsättningar. Kalkylen tillhandahålls av Lånekoll.
Värdera din bostad
Fyll i formuläret så kontaktar vi dig inom kort
Pris1 495 000 kr
Andra har också tittat på
1 / 0