230
















1 / 16
Östra Ljungby, Östra Ljungby
Fasangatan 2
1 675 000 kr
Pris1 675 000 kr
Fakta om bostaden
- Typ
- Friliggande villa
- Upplåtelseform
- Friköpt
- Antal rum
- 5 rok
- Boarea
- 117 kvm
- Biarea
- 50 kvm
- Tomtarea
- 804 kvm
- Byggår
- 1972
- Driftskostnad
- 3 779 kr/månad
- Pris
- 1 675 000 kr
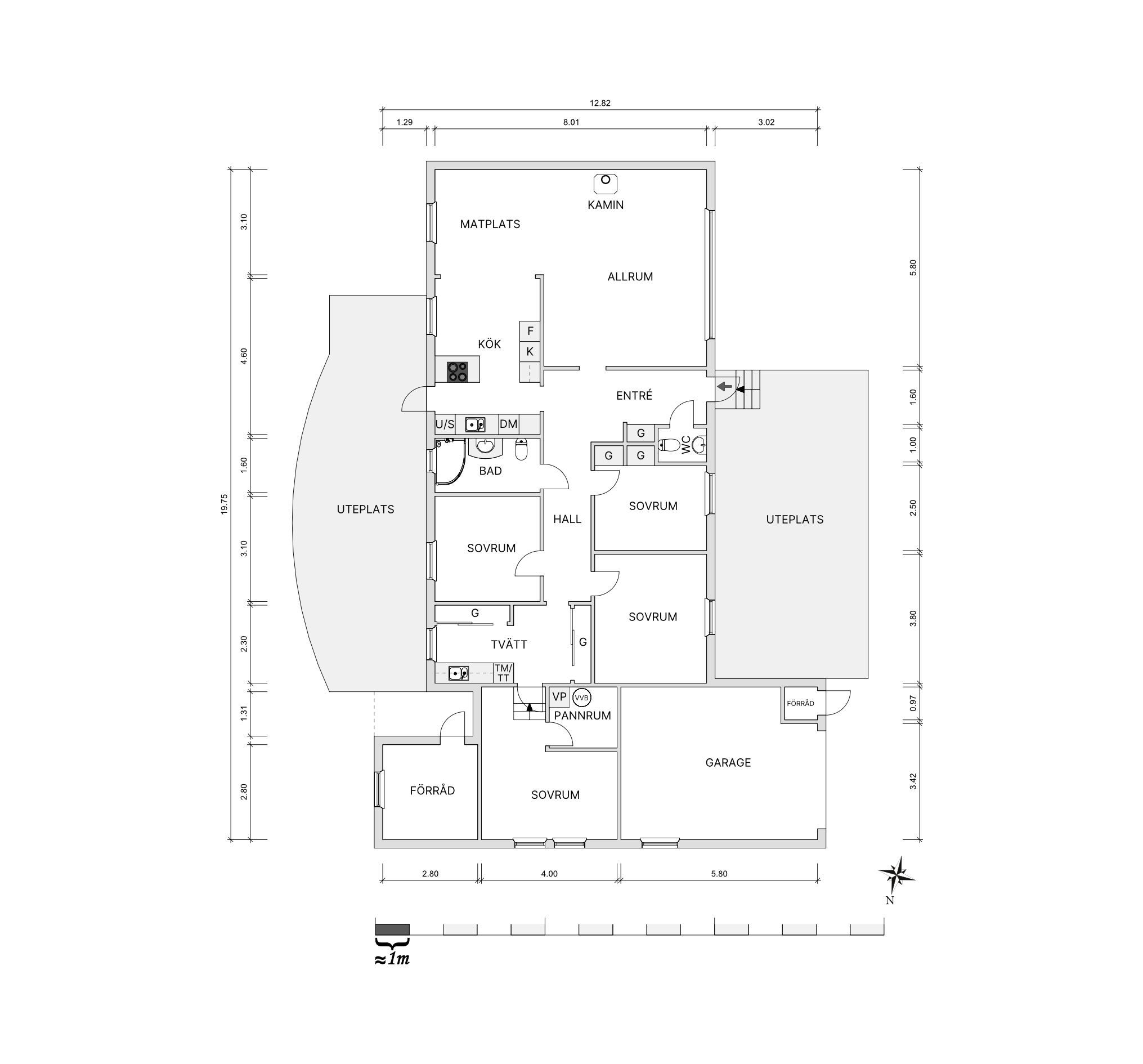
Familjevilla med nytt tak och solpaneler i Östra Ljungby!
Välkommen till Fasangatan 2 – ett hemtrevligt boende i ett lugnt och populärt villaområde i Östra Ljungby. Här bor du med naturen nära, i en trygg och trivsam miljö som passar perfekt för barnfamiljen.
Huset är en 1-plansvilla med fyra sovrum – gott om plats för både stora och små familjer. Det trevliga köket i ek från 2016 ligger öppet mot det ljusa vardagsrummet, där braskaminen och luft/luft-värmepumpen skapar skön värme under årets kyligare dagar. Från köket når du den stenlagda uteplatsen på baksidan – en perfekt plats för grillkvällar och umgänge.
Badrummet är smakfullt renoverat 2016 med kakel, klinker och golvvärme, och huset rymmer dessutom en gästtoalett samt en rymlig tvättstuga med bra förvaringsmöjligheter.
Under 2024 fick huset ett rejält lyft med nytt tak och hela 35 solpaneler à 405 W, vilket ger både ett modernt uttryck och betydligt lägre driftskostnader.
Tomten är en trivsam hörntomt på 804 m² – lättskött men med gott om plats för lek, odling och uteliv. På framsidan finns ett trädäck, och uppfarten rymmer flera bilar.
Här bor du i ett omtyckt område med närhet till både skola, förskola, mataffär och fina grönområden. Samtidigt tar du dig snabbt till Klippan, Ängelholm och Helsingborg tack vare goda kommunikationer och E4:an på bekvämt avstånd.
Fastigheten är förbesiktigad och försäkrad mot dolda fel.
Välkommen att kontakta ansvarig mäklare Johan Andersson på 076-000 10 44!
Huset är en 1-plansvilla med fyra sovrum – gott om plats för både stora och små familjer. Det trevliga köket i ek från 2016 ligger öppet mot det ljusa vardagsrummet, där braskaminen och luft/luft-värmepumpen skapar skön värme under årets kyligare dagar. Från köket når du den stenlagda uteplatsen på baksidan – en perfekt plats för grillkvällar och umgänge.
Badrummet är smakfullt renoverat 2016 med kakel, klinker och golvvärme, och huset rymmer dessutom en gästtoalett samt en rymlig tvättstuga med bra förvaringsmöjligheter.
Under 2024 fick huset ett rejält lyft med nytt tak och hela 35 solpaneler à 405 W, vilket ger både ett modernt uttryck och betydligt lägre driftskostnader.
Tomten är en trivsam hörntomt på 804 m² – lättskött men med gott om plats för lek, odling och uteliv. På framsidan finns ett trädäck, och uppfarten rymmer flera bilar.
Här bor du i ett omtyckt område med närhet till både skola, förskola, mataffär och fina grönområden. Samtidigt tar du dig snabbt till Klippan, Ängelholm och Helsingborg tack vare goda kommunikationer och E4:an på bekvämt avstånd.
Fastigheten är förbesiktigad och försäkrad mot dolda fel.
Välkommen att kontakta ansvarig mäklare Johan Andersson på 076-000 10 44!
Bilder




Ansvarig mäklare
Karta
Klippan Östra Ljungby
Fasangatan 2
Boendekalkyl
Se din boendekostnad direkt. Framräknad kostnad är en indikation på vilken boendekostnad ni kan få efter era förutsättningar. Kalkylen tillhandahålls av Lånekoll.
Värdera din bostad
Fyll i formuläret så kontaktar vi dig inom kort
Pris1 675 000 kr
Andra har också tittat på
1 / 0
